| MODERNE FAMILIENWOHNUNG IM DACHGESCHOSS | EXKLUSIVE ZENTRUMSLAGE | STADTPARK | RUHIGE HOFSEITIGE 12 m2 TERRASSE |

Wohnung - Dachgeschoß, 1030 Wien,Landstraße , Am Heumarkt


Schwarzenbergplatz, Stadtpark, Wiener Konzerthaus, Wiener Eislaufverein

Beschreibung der Immobilie

| MODERNE FAMILIENWOHNUNG IM DACHGESCHOSS | EXKLUSIVE ZENTRUMSLAGE | STADTPARK | RUHIGE HOFSEITIGE 12 m2 TERRASSE |

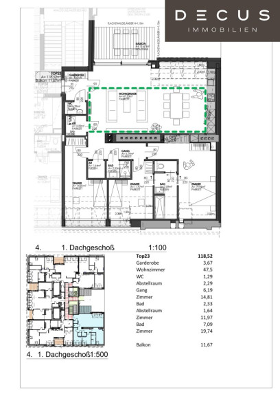
Elegante 4-Zimmer Dachgeschoßwohnung mit ca. 12 m²- Balkon nahe Marokkanergasse / Am Heumarkt/ Stadtpark 



Direkt am Stadtpark an der Grenze zum 1. Bezirk, gelangt in einem 2019 revitalisierten Stil Altbau, eine ca. 118 m² große Dachgeschoßwohnung zum Verkauf. 



Highlights: 



- 3 Schlafzimmer 



- 2 Bäder 



- 2 Toiletten 



- Herzstück ist der fast 50 m2 große Wohnsalon mit offener Wohnküche, Zugang zur Terrasse und großzügiger Fensterfront!



- Ruhige hofseitige und windgeschützte Terrasse



- Besonders edel ist die moderne Ausstattung: indirekte Beleuchtung - Voutenbleuchtung und LED Spots



- Elektrochromes Glas, kann verdunkelt werden als Sicht- und Sonnenschutz



- elektrisch öffenbare Velux Dachgeschossfenster 



- Energieausweis mit Top-Werten! 



Raumaufteilung: 



- Vorraum

- großzügiger Wohnraum, ca. 47 m², mit offener Küche und direktem Ausgang auf den Balkon

- 12 m² Balkon, westseitig ausgerichtet

- 3 Schlafzimmer 

  zwei davon haben einen direkten Zugang zum Badezimmer   

- ein Badezimmer mit Badewanne, Waschbecken und Toilette

- das zweite Badezimmer mit Walk in Shower und Waschbecken

- Gästetoilette im Eingangsbereich

- 2 Abstellräume, einer davon mit Therme und Waschmaschinenanschluss 



Ausstattung



- komplett ausgestattete Küche



- hochwertige SAGE- Verglasung (manuell steuerbare Verdunkelung als Sicht- und Sonnenschutz) 



- Dachflächenfenster werden elektrisch gesteuert



- Velux ( z.B.: Velux Modular Skylight) Systemprofile 

- Dielenboden Eiche  

- Fußbodenheizung 

- Split-Klimaanlage

- Internetanschluss / Glasfaseranschluss / A1

- dimmbare LED-Deckenspots und Voutenbeleuchtung im Wohnraum 

- Video-Gegensprechanlage

- Wohnungseingangstüre mit 3-fach Sicherheitsverriegelung (Sicherheitsklasse RC3)



Allgemeines zum Objekt 



Es gibt insgesamt 4 Geschosse inklusive dem Erdgeschoss, zuzüglich 1. und 2. Dachgeschoß 

Der Lift wurde im Rahmen des Dachgeschoßausbaus neu errichtet, ebenso die Kellerabteile sowie ein Fahrrad- und Kinderwagenraum



Der Keller ist direkt mit dem Lift erreichbar. 



Infrastruktur und öffentliche Verkehrsmittel 



Das Haus befindet sich in einer sehr guten Lage zwischen Schwarzenbergplatz und Stadtpark.

In der umliegenden Umgebung finden Sie Einkaufsmöglichkeiten und zahlreiche Restaurants.



Die U4-Bahnstation "Stadtpark" erreichen Sie in ca. 3 Gehminuten, ebenso die Straßenbahnlinien 71, D, und Linie 2 beim Schwarzenbergplatz


Der Vermittler ist als Doppelmakler tätig.

DECUS Immobilien GmbH – Wir beleben Räume

Für weitere Informationen und Besichtigungen steht Ihnen gerne Frau  Paulina Joven unter der Mobilnummer +43 660 74 55 917und per E-Mail unter joven@decus.at persönlich zur Verfügung.

www.decus.at | office@decus.at 

Wichtige Informationen

Bitte beachten Sie, dass per 13.06.2014 eine neue Richtlinie für Fernabsatz- und Auswärtsgeschäfte in Kraft getreten ist.

Ab 1.4.2024 entfallen die Grundbuchs- und Pfandrechtseintragungsgebühren vorübergehend für Eigenheime bis zu einer Bemessungsgrundlage von EUR 500.000,-. Voraussetzung ist das dringende Wohnbedürfnis, ausgenommen davon sind vererbte oder geschenkte Immobilien. Die Befreiung ist jedoch für den Einzelfall zu prüfen, DECUS Immobilien übernimmt hierzu keine Haftung.

Ab 01.07.2023 gilt das Erstauftraggeber-Prinzip bei Wohnungsmietverträgen, ausgenommen davon sind Dienst-/Natural-/Werkswohnungen. Wir dürfen gem. § 17 Maklergesetz darauf hinweisen, dass wir auf die Doppelmaklertätigkeit gem. § 5 Maklergesetz bei Wohnungsmietverträgen verzichten und nur noch einseitig tätig sind (bei den restlichen Vermittlungsarten nicht) und ein wirtschaftliches Naheverhältnis zu unseren Auftraggebern besteht. 

Im Falle eines Abschlusses mit Ihnen oder einem von Ihnen namhaft gemachten Dritten bzw. bei beidseitiger Willensübereinstimmung beträgt unser Honorar (lt. Honorarverordnung für Immobilienmakler) 2 Bruttomonatsmieten (BMM) bei Dienst-/Natural-/Werkwohnungen sowie Suchaufträgen, 3 BMM bei Gewerbe-, PKW-, Keller- und Lagermietverträgen sowie bei Kaufobjekten 3 % des Kaufpreises, zuzüglich der gesetzlichen Umsatzsteuer.

Dieses Objekt wird Ihnen unverbindlich und freibleibend angeboten. Oben angeführte Angaben basieren auf Informationen und Unterlagen des Eigentümers und sind unsererseits ohne Gewähr.

Nähere Informationen sowie unsere AGBs und die Nebenkostenübersichtsblatt finden Sie auf unserer Homepage www.decus.at unter "Service" - "Rechtliches zum FAGG" sowie im Anhang der zugesendeten Objekt-Exposés!

Infrastruktur / Entfernungen

Gesundheit
Arzt <250m
Apotheke <500m
Klinik <250m
Krankenhaus <1.000m

Kinder & Schulen
Schule <250m
Kindergarten <500m
Universität <500m
Höhere Schule <750m

Nahversorgung
Supermarkt <250m
Bäckerei <500m
Einkaufszentrum <750m

Sonstige
Geldautomat <250m
Bank <250m
Post <250m
Polizei <250m

Verkehr
Bus <250m
U-Bahn <250m
Straßenbahn <250m
Bahnhof <250m
Autobahnanschluss <2.750m

Angaben Entfernung Luftlinie / Quelle: OpenStreetMap

Eckdaten Objektnr. 1151696

Art: Wohnung - Dachgeschoß
Land: Österreich
Baujahr: 2019
Zustand: Erstbezug
Alter: Neubau
Kaufpreis: 1.098.000,00
Provision: 3% des Kaufpreises zzgl. 20% USt.
Betriebskosten: 234,50 €
MwSt Gesamt: 25,33 €
Wohnfläche: 118,52 m²
Nutzfläche: 130,19 m²
Zimmer: 4
Bäder: 2
WC: 2
Balkone: 1
Heizwärmebedarf:  B  29,16 kWh/m²a
fGEE:  A+  0,70
Immobilie merken Exposé

Ausstattung

Dielenboden, Parkett, Gas, Etagenheizung, Fußbodenheizung, Wohnküche / offene Küche, Personenaufzug, Badewanne, Dusche, Kabel/Satelliten-TV


Immobilie anfragen


Ihre persönliche Beratung

DECUS Immobilien GmbH

Paulina Joven

DECUS Immobilien GmbH

T +43 660 74 55 917

H +43 660 74 55 917

F +43 1 35 600 10