DÖBLING/WERTHEIMSTEINPARK! 3,5 ZIMMER-ALTBAU MIT WG-EIGNUNG!

Wohnung , 1190 Wien


In beliebter Lage, Nähe Hohe Warte, Wertheimsteinpark, Döblinger Hauptstraße und dem Bahnhof Heiligenstadt. In direkter Umgebung befinden sich die Buslinien 39A und 10A mit dem man in 2 Stationen bei der U4-Heiligenstadt ist sowie die Straßenbahnlinie 37 die direkt Richtung Schottentor fährt.

Beschreibung der Immobilie

DÖBLING/WERTHEIMSTEINPARK! 3,5 ZIMMER-ALTBAU MIT WG-EIGNUNG!

Die zum Verkauf stehenden 3,5-Zimmer wurden 2024 generalsaniert und sind laut Nutzwertgutachten als Büro gewidmet. Benutzt wurde die Wohnung bis auf eine kurze Ausnahme immer zum Wohnen



Die Wohnung liegt im Hochparterre im vorderen Teil der Liegenschaft. Dieser Teil wurde 1913 errichtet und ist somit ein Altbau und der hofseitige Teil wurde 1982 (Neubau) errichtet.



Ein idealer Platz um Arbeiten und Wohnen zu vereinen oder auf Grund der zentralen Aufteilung eine Wohngemeinschaft zu gründen.



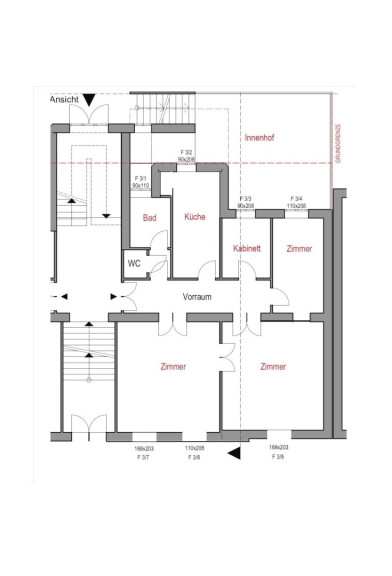
Raumaufteilung: Die Wohnfläche von 92,85m² und teilt sich in Wohnzimmer, Küche, 2 Schlafzimmer, 1 Kabinett, Bad mit Fenster (ausgestattet mit Dusche, Waschmaschinenanschluss und Handtuchheizkörper), WC (mit Handwaschbecken und Heizkörper) und ein Vorraum von dem alle Räume zentral zu begehen sind. Ein Einlagerungsraum im Keller mit 2,67 ist vorhanden.



Neuwertige Holz-/Aluschallschutzfenster mit Dreh-/Kippfunktion und Innenjalousien wurden im Zuge  der Sanierung eingebaut. Ebenso im Kaufpreis enthalten ist eine Küchenzeile mit Küchengeräten (Abwasch, Elektroherd, Kühlschrank, Geschirrspüler)



Die Beheizung erfolgt mit einem Gasbrennwertgerät von BAXI, Wärmeabgabe über Radiatorenheizkörper, Handtuchheizkörper im Bad.



Energiekennzahl: HWB 179,5 E, fGEE 2,20 D



Günstige Betriebskosten inkl. Rücklage und USt.: Euro 307,09



Kaufpreis: Euro 399.000,00 Lasten- und Bestandsfrei, ohne Garagenplatz



Maklerhonorar: 3% des Kaufpreises zzgl. 20% MwSt.



Für weitere Fragen sowie zu Vereinbarung einer Besichtigung erreichen Sie mich jederzeit unter der Mobilnummer +43 650 3110002.



Obige Angaben basieren auf Informationen und Unterlagen des Eigentümers. Der guten Ordnung halber möchten wir festhalten, dass im Falle eines Abschlusses mit Ihnen oder einem von Ihnen namhaft gemachten Dritten unser Honorar (lt. Honorarverordnung für Immobilienmakler, BGBl. 262 und 297/1996) 3% des Verkaufspreises zzgl. der gesetzlichen Mwst. beträgt. Es gelten unsere allgemeinen Geschäftsbedingungen. Irrtum vorbehalten.  



 


Wir weisen darauf hin, dass zwischen dem Vermittler und dem zu vermittelnden Dritten ein familiäres oder wirtschaftliches Naheverhältnis besteht.


Der Vermittler ist als Doppelmakler tätig.

Infrastruktur / Entfernungen

Gesundheit
Arzt <500m
Apotheke <500m
Klinik <1.000m
Krankenhaus <1.000m

Kinder & Schulen
Schule <500m
Kindergarten <500m
Universität <500m
Höhere Schule <1.000m

Nahversorgung
Supermarkt <500m
Bäckerei <500m
Einkaufszentrum <1.500m

Sonstige
Geldautomat <500m
Bank <500m
Post <1.000m
Polizei <500m

Verkehr
Bus <500m
U-Bahn <500m
Straßenbahn <500m
Bahnhof <1.000m
Autobahnanschluss <1.000m

Angaben Entfernung Luftlinie / Quelle: OpenStreetMap

Eckdaten Objektnr. 5829/1038

Art: Wohnung
Land: Österreich
Baujahr: 1913
Alter: Altbau
Kaufpreis: 399.000,00
Provision: 3% des Kaufpreises zzgl. 20% USt.
Betriebskosten: 307,09 €
Wohnfläche: 92,85 m²
Zimmer: 3,50
Bäder: 1
WC: 1
Heizwärmebedarf:  E  179,50 kWh/m²a
fGEE:  D  2,20
Immobilie merken Exposé

Ausstattung

Gas, Etagenheizung, Einbauküche, Personenaufzug, Bad mit Fenster


Immobilie anfragen


Ihre persönliche Beratung

Dejan Stanisavljevic

IKW Immokontakt Wohnideen GmbH

T +436503110002