++ Wohnen in Augartennähe ++ JETZT ZUSCHLAGEN UND WEIHNACHTEN IM NEUEN ZUHAUSE FEIERN + Erstklassig sanierte Altbauwohnung in ruhiger Seitenstraße in unmittelbarer Nähe zur U-Bahnstation Taborstraße + 2,5 Zimmer

Wohnung , 1020 Wien , Blumauergasse


Diese charmante Wohnung in der Blumauergasse 1020 Wien überzeugt durch ihre zentrale Lage. Nur einen Steinwurf von der Taborstraße und dem idyllischen Augarten entfernt, profitieren Sie von einer hervorragenden Anbindung an öffentliche Verkehrsmittel, inklusive U-Bahn und Straßenbahn. Alle wichtigen Einrichtungen wie Ärzte, Apotheken, Schulen, Universitäten, Supermärkte und Bäckereien sind bequem zu Fuß erreichbar. Hier genießen Sie urbanes Leben mit allem Komfort. Öffentliche Verkehrsanbindung: + U2 Taborstraße, U1 Nestroyplatz + Straßenbahnlinie 2 + Buslinie 5A, 5B + S-Bahn Praterstern

Beschreibung der Immobilie

++ Wohnen in Augartennähe ++ JETZT ZUSCHLAGEN UND WEIHNACHTEN IM NEUEN ZUHAUSE FEIERN + Erstklassig sanierte Altbauwohnung in ruhiger Seitenstraße in unmittelbarer Nähe zur U-Bahnstation Taborstraße + 2,5 Zimmer

Sichern Sie sich schnell dieses großartige Immobilienangebot in einer der beliebtesten Lagen des 2. Bezirks nahe dem Augarten!



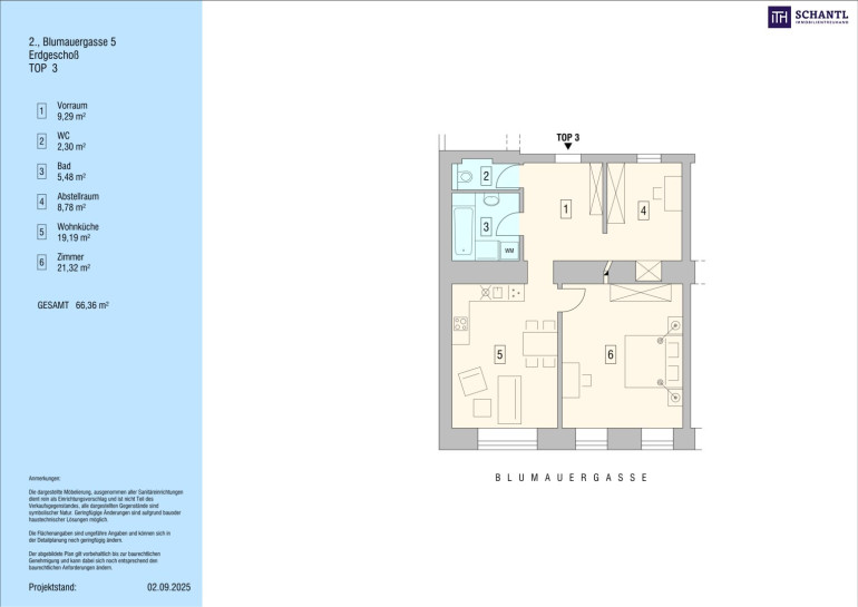
Diese charmante 2,5-Zimmer-Wohnung in der Blumauergasse bietet Ihnen alles, was Sie sich für ein modernes und komfortables Leben wünschen. Mit einer großzügigen Fläche von ca. 66,36 m² und einem attraktiven Kaufpreis von 399.000,00 € ist dieses Angebot nicht nur eine Investition in Immobilien, sondern auch in Ihre Lebensqualität.



Die Wohnung befindet sich im Erdgeschoß eines gepflegten Mehrfamilienhauses und besticht durch ihre hochwertig sanierte Ausstattung. Der offene Wohnbereich mit Platz für Ihre Küche lädt zum Verweilen und Entspannen ein. Hier können Sie Ihre Kochkünste entfalten und gleichzeitig die Gesellschaft von Freunden oder Familie genießen. 



Eckdaten & Highlights:



  • Nähe zu U-Bahn und Augarten
  • gelungene Raumaufteilung
  • gemütliche Wohnküche
  • geräumiges Schlafzimmer
  • zweiten Zimmer, welches ideal als Home-Office genutzt werden kann ( Gang-Fenster)
  • modern verfliestes Badezimmer mit Badewanne


ACHTUNG: Die Bilder dienen lediglich der Veranschaulichung der Ausstattung und wurden virtuell möbliert.



Ein besonderes Highlight dieser Immobilie ist die hervorragende Verkehrsanbindung. Ob Bus, U-Bahn, Straßenbahn oder Bahnhof – Sie erreichen alle wichtigen Ziele in kürzester Zeit. Dies macht die Wohnung nicht nur ideal für Pendler, sondern auch für alle, die das pulsierende Leben Wiens genießen möchten.



Die Umgebung bietet Ihnen eine Vielzahl an Annehmlichkeiten. Ärzte, Apotheken, Kliniken und Krankenhäuser sind in unmittelbarer Nähe und sorgen dafür, dass Sie stets gut versorgt sind. Für Familien sind Schulen und Kindergärten in der Nähe, während Universitäten und höhere Schulen für eine ausgezeichnete Ausbildung in Reichweite sind. Auch der tägliche Einkauf ist mühelos, denn Supermärkte und Bäckereien befinden sich nur wenige Minuten entfernt.



Nutzen Sie die Chance, diese attraktive Wohnung in einer der lebenswertesten Städte Europas zu Ihrem neuen Zuhause zu machen. Zögern Sie nicht und vereinbaren Sie noch heute einen Besichtigungstermin! Entdecken Sie die Vorzüge dieser Immobilie und lassen Sie sich von ihrem Charme begeistern. Ihre Traumwohnung in Wien wartet auf Sie!



Kaufpreis: EUR 399.000,-



monatliche Nebenkosten: EUR 217,47 inkl. Betriebskosten, Rücklagen und Ust.



Bei konkretem Interesse senden wir Ihnen sehr gerne weiterführende Dokumente zu, wie:



o Grundbuchauszug



o Wohnungseigentumsvertrag



o Nutzwertgutachten



o Eigentümerversammlungsprotokoll (Falls vorhanden) etc...





Unser Service für Sie: Wenn Sie sich für diese Immobilie entschieden haben, begleiten wir Sie gerne vom Kaufanbot weg inkl. Klärung von Sonderwünschen und der Vertragsunterzeichnung über die Wohnungsübergabe bis hin zu diversen Ummeldungen wie Strom und Gas. Entsprechende Formulare oder auch Meldezettel stellen wir Ihnen sehr gerne zur Verfügung.



Gerne unterstützen wir Sie auch bei der Finanzierung Ihres Traumobjekts und finden mit unseren langjährigen Partnern die besten Konditionen für Sie.



www.schantl-ith.at


Wir weisen darauf hin, dass zwischen dem Vermittler und dem zu vermittelnden Dritten ein familiäres oder wirtschaftliches Naheverhältnis besteht.


Der Vermittler ist als Doppelmakler tätig.

Infrastruktur / Entfernungen

Gesundheit
Arzt <250m
Apotheke <250m
Klinik <500m
Krankenhaus <500m

Kinder & Schulen
Schule <250m
Kindergarten <500m
Universität <750m
Höhere Schule <1.000m

Nahversorgung
Supermarkt <250m
Bäckerei <250m
Einkaufszentrum <1.500m

Sonstige
Geldautomat <250m
Bank <250m
Post <500m
Polizei <750m

Verkehr
Bus <250m
U-Bahn <250m
Straßenbahn <250m
Bahnhof <250m
Autobahnanschluss <2.750m

Angaben Entfernung Luftlinie / Quelle: OpenStreetMap

Eckdaten Objektnr. 290972

Art: Wohnung
Land: Österreich
Baujahr: 1900
Zustand: Erstbezug
Alter: Altbau
Kaufpreis: 399.000,00
Provision: 14.364,00 € inkl. 20% USt.
Betriebskosten: 144,90 €
MwSt Gesamt: 14,49 €
Wohnfläche: 66,36 m²
Nutzfläche: 66,36 m²
Gesamtfläche: 66,36 m²
Zimmer: 2,50
Bäder: 1
WC: 1
Heizwärmebedarf:  C  80,99 kWh/m²a
fGEE:  C  1,66
Immobilie merken Exposé

Ausstattung

Parkett, Fliesen, Gas, Etagenheizung, Fußbodenheizung, Wohnküche / offene Küche, Personenaufzug, Badewanne, Kabel/Satelliten-TV


Immobilie anfragen


Ihre persönliche Beratung

Schantl ITH Immobilientreuhand GmbH

Magdalena Tiatco-Frank

Schantl ITH Immobilientreuhand GmbH

T +43 664 30 700 09

H +43 676 95 524 11