Klein aber fein: Renovierungsbedürftige 1-Zimmer-Wohnung in 1210 Wien um 120.000 €!

Wohnung , 1210 Wien


Diese attraktive Wohnung befindet sich im pulsierenden 21. Bezirk von Wien, nahe Floridsdorf. Die Lage bietet eine hervorragende Anbindung an öffentliche Verkehrsmittel, darunter U-Bahn, Straßenbahn und Bus, sodass Sie schnell ins Stadtzentrum gelangen. In unmittelbarer Nähe finden Sie alle wichtigen Einrichtungen wie Ärzte, Apotheken, Schulen, Universitäten, Supermärkte und ein Einkaufszentrum. Auch Autobahnanschlüsse sind schnell erreichbar. Hier genießen Sie urbanes Leben in bester Infrastruktur!

Beschreibung der Immobilie

Klein aber fein: Renovierungsbedürftige 1-Zimmer-Wohnung in 1210 Wien um 120.000 €!

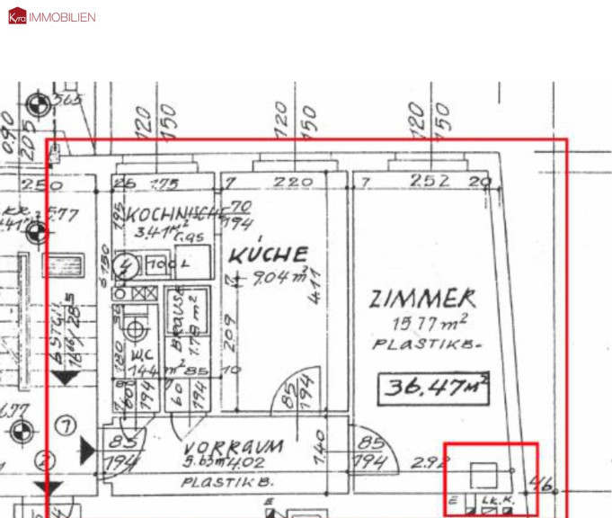
Willkommen in Ihrer neuen Wohnung im aufstrebenden 21. Bezirk von Wien – eine Gelegenheit, die Sie nicht verpassen sollten! Diese charmante 1-Zimmer-Wohnung im Erdgeschoss (hofseitig) bietet Ihnen mit einer Fläche von 36,47 m² den perfekten Raum, um Ihre Wohnträume zu verwirklichen.



Mit einem Kaufpreis von nur 120.000,00 € ist diese Immobilie nicht nur ein ideales Zuhause, sondern auch eine ausgezeichnete Investition in die Zukunft. Die Wohnung ist renovierungsbedürftig, was Ihnen die Möglichkeit gibt, Ihre eigenen Vorstellungen und Wünsche in die Gestaltung einfließen zu lassen. Stellen Sie sich vor, wie Sie Ihre ganz persönliche Wohlfühloase schaffen – vom gemütlichen Wohnbereich bis hin zur funktionalen Einbauküche, die Ihnen bereits zur Verfügung steht.



Die Wohnung ist mit Fliesen und Laminat ausgestattet, was sowohl Pflegeleichtigkeit als auch eine angenehme Atmosphäre schafft. Die Etagenheizung sorgt für wohlige Wärme in den kälteren Monaten und das Bad mit Dusche und WC bietet Ihnen den nötigen Komfort, den Sie im Alltag benötigen.



Die Lage könnte nicht besser sein! Sie profitieren von einer hervorragenden Verkehrsanbindung. Ob Bus, U-Bahn, Straßenbahn oder der Bahnhof – hier sind Sie bestens vernetzt und gelangen schnell und bequem an Ihr Ziel. Auch der Autobahnanschluss ist in unmittelbarer Nähe, was Pendlern eine große Erleichterung bietet.



In der Umgebung finden Sie alles, was das Herz begehrt: Ärzte, Apotheken, Kliniken und Krankenhäuser sind schnell erreichbar, sodass Sie jederzeit gut versorgt sind. Familien mit Kindern werden die Nähe zu Schulen, Kindergärten und sogar einer Universität sowie einer höheren Schule zu schätzen wissen. Für den täglichen Bedarf stehen Ihnen Supermärkte, Bäckereien und ein Einkaufszentrum in der Nähe zur Verfügung, was Ihnen das Leben erheblich erleichtert.



Diese Wohnung ist nicht nur ein Ort zum Wohnen, sondern ein Platz, an dem Sie Ihre Zukunft gestalten können. Nutzen Sie die Chance, in einem der vielfältigsten Stadtteile Wiens Fuß zu fassen. Lassen Sie Ihrer Kreativität freien Lauf und verwandeln Sie diese Wohnung in Ihr persönliches Zuhause. Zögern Sie nicht – vereinbaren Sie noch heute einen Besichtigungstermin und überzeugen Sie sich selbst von den Möglichkeiten, die Ihnen diese Immobilie bietet!


Der Vermittler ist als Doppelmakler tätig.

Infrastruktur / Entfernungen

Gesundheit
Arzt <500m
Apotheke <500m
Klinik <1.000m
Krankenhaus <1.000m

Kinder & Schulen
Schule <500m
Kindergarten <500m
Universität <1.000m
Höhere Schule <1.000m

Nahversorgung
Supermarkt <500m
Bäckerei <500m
Einkaufszentrum <500m

Sonstige
Geldautomat <500m
Bank <500m
Post <500m
Polizei <500m

Verkehr
Bus <500m
U-Bahn <500m
Straßenbahn <500m
Bahnhof <500m
Autobahnanschluss <500m

Angaben Entfernung Luftlinie / Quelle: OpenStreetMap

Eckdaten Objektnr. 5354/2021519

Art: Wohnung
Land: Österreich
Baujahr: 1973
Zustand: Teil_vollrenovierungsbed
Kaufpreis: 120.000,00
Provision: 3% des Kaufpreises zzgl. 20% USt.
Betriebskosten: 113,11 €
Sonstige Kosten: 66,33 €
Wohnfläche: 36,47 m²
Zimmer: 1,50
Bäder: 1
WC: 1
Heizwärmebedarf:  C  56,70 kWh/m²a
fGEE:  C  1,28
Immobilie merken Exposé

Ausstattung

Fliesen, Laminatboden, Gas, Etagenheizung, Einbauküche, Dusche


Immobilie anfragen


Ihre persönliche Beratung

Kyra Immobilien GmbH

Jürgen Mages

Kyra Immobilien GmbH

T + 43 664 201 94 93

H + 43 664 201 94 93