+ + + KEINE KAUTION + + + Alt- und Neubaubüros im IP.ONE + + + außergewöhnliches Bürohaus + + + NÄHE HAUPTBAHNHOF + + +

Büro / Praxis , 1100 Wien


Beschreibung der Immobilie

+ + + KEINE KAUTION + + + Alt- und Neubaubüros im IP.ONE + + + außergewöhnliches Bürohaus + + + NÄHE HAUPTBAHNHOF + + +

Fotos tlw: ©Erich SInzinger





Objekt und Lage:



Das Bürogebäude IP.ONE befindet sich in der Nähe des Matzleinsdorfer Platzes und verfügt über eine gute Verkehrsanbindung. Durch die Nähe zur Gudrunstraße ist einerseits seine gute Versorgung mit Geschäften und Restaurants gegeben und andererseits  durch den Waldmüllerpark Erholung im Grünen gesichert.



In Planung ist die Errichtung einer U-Bahn-Station am Matzleisdorferplatz. Diese wird die Liegenschaft noch attraktiver machen. Weiters hat der Eigentümer sehr stark in die Sanierung der Allgemeinflächen investiert und wird dies auch weiterhin tun. Die Flächen können zum jetzigen Zeitpunkt noch zu einem attraktiven Mietpreis angemietet werden. Durch den Bau der nahe gelegenen U-Bahn-Station wird die Liegenschaftt noch weiter aufgewertet werden.





Das außergewöhnliche Gebäude setzt sich aus einem Alt- und einem Neubau zusammen.



Der Zugang zu den Flächen erfolgt über eine neu sanierte großzügige, architektonisch ansprechende Empfangshalle, welche auch als Veranstaltungsfläche benutzt werden kann. Weiters steht im Erdgeschoß ein voll ausgestatteter Seminarraum zur Verfügung. 



Der Neubau wurde nach Entwürfen der international bekannten Architekten von BKK3 errichtet.





Die Büroflächen in bieten einerseits Fabriksflair im Altbau mit Raumhöhen bis zu 3 Metern und andererseits im Neubau moderne, effiziente Flächen. Die Büroflächen können den Wünschen der potenziellen Nutzer flexibel angepasst werden.



Durch die gelungene Einbeziehung der älteren Bauteile in ein modernes Gesamtkonzept und die dadurch entstehende Flächenvielfalt handelt es sich beim IP.ONE um einen einzigartigen Standort.





Die Betriebskosten (inkl. Heizung, exkl. Kühlung) sind als zirka Angaben zu verstehen.





  • Mietvertrag: befristet - nach Vereinbarung
  • KEINE KAUTION
  • 3 Bruttomonatsmieten: Provision
  • Innenfotos auf Anfrage




Ausstattung:



  • Lift
  • Lastenlift
  • tlw. Teppichboden, Linoleumboden, Fliesenboden 
  • tlw. Kabelkanäle
  • tlw. Gemeinschafts-WC
  • Teeküche/-Anschlüsse 
  • Gaszentralheizung
  • Hauskälteanlage 
  • die Büroflächen sind teilweise bereits gekühlt - der Eigentümer lässt derzeit ein Konzept für die Kühlung aller Büroflächen erstellen
  • hauseigene Tiefgarage
  • Highspeed Glasfaser von Nessus (bis zu 10 GB Bandbreite)
  • Fahrradkäfig (außen, versperrbar)
  • Konferenzraum (EG, Visualisierung im Exposé)
  • Stiege 1: Sanitäreinheiten befinden sich im Allgemeinbereich




Energieausweis liegt vor:



Heizwärmebedarf: 65kWh/m².a





Stellplätze:



Stellplätze sind im Freien oder in der hauseigenen Tiefgarage verfügbar. 



Garage im Haus: ab € 60,00/Stellplatz/Monat/netto



E-Ladestation auf eigene Kosten im 1.UG möglich





Verkehrsanbindung:



Autobus Linie 14A, Schnellbahn S15, S1, S2, S3 (Matzleinsdorfer Platz); mit dem PKW über die  A23 Südosttangente Wien und die A4





Alle Preisangaben verstehen sich zzgl. der gesetzl. Ust.



Alle Angaben ohne Gewähr, Irrtümer und Änderungen vorbehalten.


Wir weisen darauf hin, dass zwischen dem Vermittler und dem zu vermittelnden Dritten ein familiäres oder wirtschaftliches Naheverhältnis besteht.


Der Vermittler ist als Doppelmakler tätig.

DECUS Immobilien GmbH – Wir beleben Räume

Für weitere Informationen und Besichtigungen steht Ihnen gerne Frau  Sonja Macho unter der Mobilnummer +43 664 44 53 56 1und per E-Mail unter macho@decus.at persönlich zur Verfügung.

www.decus.at | office@decus.at 

Wichtige Informationen

Bitte beachten Sie, dass per 13.06.2014 eine neue Richtlinie für Fernabsatz- und Auswärtsgeschäfte in Kraft getreten ist.

Ab 1.4.2024 entfallen die Grundbuchs- und Pfandrechtseintragungsgebühren vorübergehend für Eigenheime bis zu einer Bemessungsgrundlage von EUR 500.000,-. Voraussetzung ist das dringende Wohnbedürfnis, ausgenommen davon sind vererbte oder geschenkte Immobilien. Die Befreiung ist jedoch für den Einzelfall zu prüfen, DECUS Immobilien übernimmt hierzu keine Haftung.

Ab 01.07.2023 gilt das Erstauftraggeber-Prinzip bei Wohnungsmietverträgen, ausgenommen davon sind Dienst-/Natural-/Werkswohnungen. Wir dürfen gem. § 17 Maklergesetz darauf hinweisen, dass wir auf die Doppelmaklertätigkeit gem. § 5 Maklergesetz bei Wohnungsmietverträgen verzichten und nur noch einseitig tätig sind (bei den restlichen Vermittlungsarten nicht) und ein wirtschaftliches Naheverhältnis zu unseren Auftraggebern besteht. 

Im Falle eines Abschlusses mit Ihnen oder einem von Ihnen namhaft gemachten Dritten bzw. bei beidseitiger Willensübereinstimmung beträgt unser Honorar (lt. Honorarverordnung für Immobilienmakler) 2 Bruttomonatsmieten (BMM) bei Dienst-/Natural-/Werkwohnungen sowie Suchaufträgen, 3 BMM bei Gewerbe-, PKW-, Keller- und Lagermietverträgen sowie bei Kaufobjekten 3 % des Kaufpreises, zuzüglich der gesetzlichen Umsatzsteuer.

Dieses Objekt wird Ihnen unverbindlich und freibleibend angeboten. Oben angeführte Angaben basieren auf Informationen und Unterlagen des Eigentümers und sind unsererseits ohne Gewähr.

Nähere Informationen sowie unsere AGBs und die Nebenkostenübersichtsblatt finden Sie auf unserer Homepage www.decus.at unter "Service" - "Rechtliches zum FAGG" sowie im Anhang der zugesendeten Objekt-Exposés!

Infrastruktur / Entfernungen

Gesundheit
Arzt <500m
Apotheke <500m
Klinik <500m
Krankenhaus <1.000m

Kinder & Schulen
Schule <500m
Kindergarten <500m
Universität <1.000m
Höhere Schule <1.500m

Nahversorgung
Supermarkt <500m
Bäckerei <500m
Einkaufszentrum <1.000m

Sonstige
Geldautomat <500m
Bank <500m
Post <1.000m
Polizei <500m

Verkehr
Bus <500m
U-Bahn <500m
Straßenbahn <500m
Bahnhof <500m
Autobahnanschluss <2.500m

Angaben Entfernung Luftlinie / Quelle: OpenStreetMap

Verfügbare Flächen

Stiege/Bauteil 0


Stockwerk
Top
Art
Fläche
Terrasse
Nettomiete/m²
BK/m²

3. Etage
-
Büro / Praxis
165,00 m2
-
13,00 €
3,25 €

3. Etage
-
Büro / Praxis
118,00 m2
-
13,00 €
3,25 €

3. Etage
-
Büro / Praxis
219,80 m2
-
11,00 €
3,25 €

-
-
Büro / Praxis
174,00 m2
-
13,00 €
3,25 €

3. Etage
-
Büro / Praxis
148,00 m2
-
13,00 €
3,25 €

2. Etage
-
Büro / Praxis
208,24 m2
-
11,00 €
3,25 €

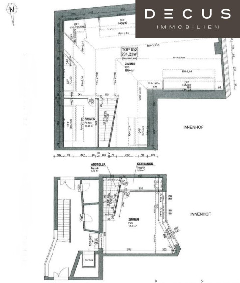
5. Etage
-
Büro / Praxis
231,23 m2
-
11,00 €
3,25 €

4. Etage
-
Büro / Praxis
180,81 m2
-
11,00 €
3,25 €

verfügbare flächen

Stiege/Bauteil 0

Stockwerk
Top
Art
Fläche
Teilbar ab
Terrasse
Nettomiete/m2 von-bis
BK/m2
3. Etage
-
Büro / Praxis
165,00 m2
-
-
13,00 - 13,00 €
3,25 €
Stockwerk
Top
Art
Fläche
Teilbar ab
Terrasse
Nettomiete/m2 von-bis
BK/m2
3. Etage
-
Büro / Praxis
118,00 m2
-
-
13,00 - 13,00 €
3,25 €
Stockwerk
Top
Art
Fläche
Teilbar ab
Terrasse
Nettomiete/m2 von-bis
BK/m2
3. Etage
-
Büro / Praxis
219,80 m2
-
-
11,00 - 11,00 €
3,25 €
Stockwerk
Top
Art
Fläche
Teilbar ab
Terrasse
Nettomiete/m2 von-bis
BK/m2
-
-
Büro / Praxis
174,00 m2
-
-
13,00 - 13,00 €
3,25 €
Stockwerk
Top
Art
Fläche
Teilbar ab
Terrasse
Nettomiete/m2 von-bis
BK/m2
3. Etage
-
Büro / Praxis
148,00 m2
-
-
13,00 - 13,00 €
3,25 €
Stockwerk
Top
Art
Fläche
Teilbar ab
Terrasse
Nettomiete/m2 von-bis
BK/m2
2. Etage
-
Büro / Praxis
208,24 m2
-
-
11,00 - 11,00 €
3,25 €
Stockwerk
Top
Art
Fläche
Teilbar ab
Terrasse
Nettomiete/m2 von-bis
BK/m2
5. Etage
-
Büro / Praxis
231,23 m2
-
-
11,00 - 11,00 €
3,25 €
Stockwerk
Top
Art
Fläche
Teilbar ab
Terrasse
Nettomiete/m2 von-bis
BK/m2
4. Etage
-
Büro / Praxis
180,81 m2
-
-
11,00 - 11,00 €
3,25 €

Eckdaten Objektnr. 1144912/7

Art: Büro / Praxis
Land: Österreich
Kaltmiete (netto): 2.543,53 €
Miete / m²: 11,00 € - 13,00 €
Provision: 3 Bruttomonatsmieten zzgl. 20% USt.
Betriebskosten: 751,50 €
Nutzfläche: 231,23 m²
Heizwärmebedarf: 65,00 kWh/m²a
Immobilie merken Exposé

Immobilie anfragen


Ihre persönliche Beratung

DECUS Immobilien GmbH

Sonja Macho

DECUS Immobilien GmbH

T +43 664 44 53 56 1

H +43 664 44 53 56 1

F +43 1 35 600 10