Attraktives Renditeobjekt: Vermietete 8-Zimmer-Wohnung in Innsbruck-Pradl

Wohnung , 6020 Innsbruck


Die Immobilie liegt im Herzen von Innsbruck-Pradl, einem urbanen Stadtteil mit hervorragender Infrastruktur. Öffentliche Verkehrsmittel, Einkaufsmöglichkeiten, Bildungseinrichtungen und Freizeitangebote befinden sich in unmittelbarer Nähe. Die zentrale Lage sowie die schnelle Erreichbarkeit des Stadtzentrums machen diese Immobilie für Mieter besonders attraktiv.

Beschreibung der Immobilie

Attraktives Renditeobjekt: Vermietete 8-Zimmer-Wohnung in Innsbruck-Pradl

Investieren Sie in eine renditestarke Immobilie im begehrten Stadtteil Pradl in Innsbruck! 



Diese großzügige 8-Zimmer-Wohnung, kombiniert mit zusätzlichen Nutzflächen im Untergeschoss, wurde 2015 von einer Büroeinheit in eine Wohneinheit umgewandelt und bietet seither eine ausgezeichnete Mietstruktur. Dank der flexiblen Gestaltung der Einheit ist sie entweder als Wohnung (wie aktuell) oder als Geschäftseinheit nutzbar, was zusätzliche Möglichkeiten für eine alternative Nutzung bietet.



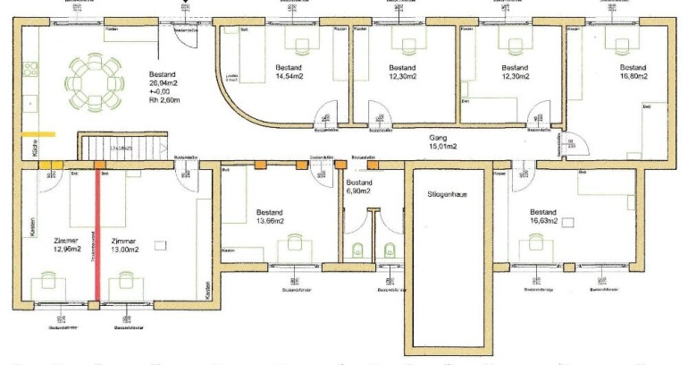
Die ca. 210 m² große Einheit, verteilt auf Erd- und Untergeschoss, ist vollständig vermietet und erzielt eine stabile Rendite. Mit einer monatlichen Nettomiete von € 2.798,15 stellt dieses Objekt eine rentable und zukunftssichere Kapitalanlage dar.





Raumaufteilung und Ausstattung:



Erdgeschoss (ca. 161,04 m²):



·Heller Koch- und Essbereich für gemeinschaftliche Nutzung.



·8 separate Zimmer, die individuell vermietet sind.



·Badezimmer mit Dusche und WC.





Untergeschoss (ca. 49,05 m²):



·Praktischer Aufenthaltsraum mit vielseitigen Nutzungsmöglichkeiten.



·Abstellraum mit zusätzlichem Stauraum.



·Wasch- und Trockenraum mit Dusche und WC – ideal für die Mieter.





Highlights für Investoren:



·Vollständig vermietet an separate Mieter auf befristeten Verträgen – sofortige Einnahmen garantiert. 



·Monatliche Nettomiete: € 2.798,15 – hohe und stabile Rendite. 



·Geringer Instandhaltungsaufwand durch solide Bauweise und funktionale Ausstattung. 



·Beliebte Lage in Innsbruck-Pradl, einem Stadtteil mit hoher Mietnachfrage. 



·Flexible Nutzung: Geeignet als Wohneinheit oder Geschäftseinheit – optimale Anpassung an Ihre Investitionsstrategie.





Fazit:
Dieses Objekt bietet Ihnen als Investor eine seltene Gelegenheit, in den dynamischen Innsbrucker Immobilienmarkt einzusteigen. Mit stabilen Mieteinnahmen, einer ausgezeichneten Lage und nachhaltiger Vermietbarkeit ist diese Immobilie ein Garant für langfristigen Erfolg.





Sind Sie interessiert?
Wir freuen uns darauf, Ihnen weitere Details zu diesem Renditeobjekt zu präsentieren. Vereinbaren Sie noch heute einen Termin, um die Immobilie näher kennenzulernen!





Nebenkosten:

- Grunderwerbssteuer: 3,5 %

- Grundbuchseintragung: 1,1 %

- Vertragserrichtungskosten: 2,0 % vom Verkaufspreis zzgl. 20 % Ust

- Vermittlungshonorar: 3 % vom Verkaufspreis zzgl. 20 % Ust.



Es wird darauf hingewiesen, dass gemäß der Nachweispflicht gegenüber dem Auftraggeber nur Anfragen mit vollständigen Kontaktdaten (Name, Adresse, Telefonnummer und E-Mail) bearbeitet bzw. Unterlagen weitergeleitet werden können.



Die Angaben erfolgen auf Basis der Informationen und Unterlagen des Eigentümers und sind ohne Gewähr.

Noch nichts gefunden? Wir informieren Sie über geeignete Immobilienangebote noch vor allen anderen.
Legen Sie jetzt Ihren individuellen Suchagenten unter folgendem Link an. Wir schicken Ihnen passende Immobilien exklusiv vorab zu.

Suchagent anlegen - https://immotyrol-ponholzer.service.immo/registrieren/de


Wir weisen darauf hin, dass zwischen dem Vermittler und dem zu vermittelnden Dritten ein familiäres oder wirtschaftliches Naheverhältnis besteht.


Der Vermittler ist als Doppelmakler tätig.

Infrastruktur / Entfernungen

Gesundheit
Arzt <500m
Apotheke <500m
Klinik <1.500m
Krankenhaus <2.000m

Kinder & Schulen
Schule <500m
Kindergarten <500m
Universität <1.000m
Höhere Schule <1.500m

Nahversorgung
Supermarkt <500m
Bäckerei <500m
Einkaufszentrum <500m

Sonstige
Bank <500m
Geldautomat <500m
Post <500m
Polizei <500m

Verkehr
Bus <500m
Straßenbahn <500m
Autobahnanschluss <1.500m
Bahnhof <500m
Flughafen <5.000m

Angaben Entfernung Luftlinie / Quelle: OpenStreetMap

Eckdaten Objektnr. 5959/833

Art: Wohnung
Land: Österreich
Baujahr: 1957
Kaufpreis: 736.000,00
Provision: 3% des Kaufpreises zzgl. 20% USt.
Betriebskosten: 546,09 €
Nutzfläche: 210,09 m²
Zimmer: 8
Bäder: 2
WC: 2
Heizwärmebedarf:  E  160,40 kWh/m²a
fGEE:  D  2,02
Immobilie merken Exposé

Ausstattung

Gas, Zentralheizung, Wohnküche / offene Küche, Bad mit Fenster, Dusche


Immobilie anfragen


Ihre persönliche Beratung

Mario Ponholzer

ImmoTyrol - Ponholzer e.U.

T +43 664 959 53 79