++NEU++ Fantastische 2-Zimmer ALTBAU-WOHNUNG (Erstbezug) mit getrennter Küche in sehr guter Lage!!!

Wohnung , 1050 Wien , Reinprechtsdorfer Straße


Reinprechtsdorfer Straße

Beschreibung der Immobilie

++NEU++ Fantastische 2-Zimmer ALTBAU-WOHNUNG (Erstbezug) mit getrennter Küche in sehr guter Lage!!!

Generalsanierte 2-Zimmer Altbauwohnung – 61m² in zentraler Lage



Zum Verkauf steht eine soeben generalsanierte ca. 61m² große 2-Zimmer Altbauwohnung in einer ausgezeichneten Lage des 5. Wiener Gemeindebezirks, in einem gepflegten Altbau.




Besichtigung



Für die Vereinbarung eines Besichtigungstermins senden Sie uns bitte unbedingt eine schriftliche Anfrage. Wir antworten verlässlich noch am selben Tag!




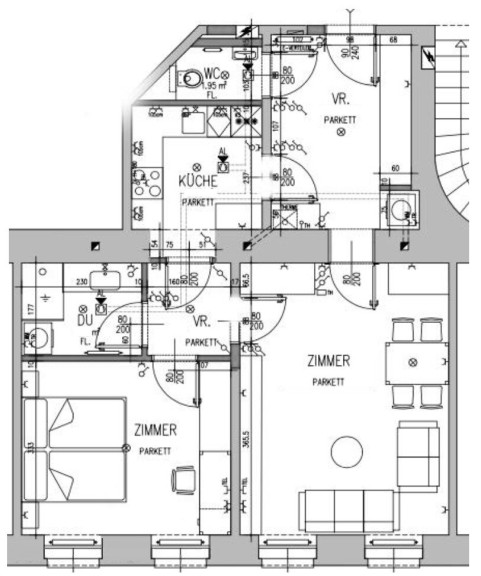
Wohnung im Detail




  • Raumaufteilung (ca. 61m²):



    • Vorraum
    • Getrenntes WC
    • Küche
    • Badezimmer mit Dusche
    • Schlafzimmer
    • Wohnzimmer

      (siehe Plan und aktuelle Fotos)






  • Zustand:
    Die Wohnung wurde generalsaniert, inklusive aller Leitungen, und befindet sich im Erstbezug (ohne Küche).

    (siehe Fotodokumentation)





Haus



Die Wohnung befindet sich im 1. Obergeschoss eines gepflegten Altbaus mit Aufzug.




Lage und Umgebung




  • Adresse:
    Reinprechtsdorfer Straße, 1050 Wien.



  • Nahversorgung:
    In der Umgebung befinden sich zahlreiche Geschäfte des täglichen Bedarfs, darunter Supermärkte, Restaurants, Apotheken, Banken und Bekleidungsgeschäfte. Arztpraxen sind ebenfalls fußläufig erreichbar.



  • Freizeit und Erholung:
    Der Bacher Park und der Einsiedlerpark liegen nur 1 Minute zu Fuß entfernt und bieten ideale Möglichkeiten zur Entspannung oder für sportliche Aktivitäten.



  • Verkehrsanbindung:
    Die Wohnung ist hervorragend an den öffentlichen Verkehr angebunden:



    • Buslinien: 12A, 59A
    • Straßenbahnen: 1, 18, 62, WLB
    • Schnellbahnen: S1, S2, S3, S4, S80, R


    Der Matzleinsdorfer Platz (8 Minuten Fußweg, ca. 700m) bietet schnelle Verbindungen zur Wiener Innenstadt, zu den Randbezirken und darüber hinaus.



  • Bildungseinrichtungen:
    Kindergärten, Schulen und Universitäten sind mit den öffentlichen Verkehrsmitteln bestens angebunden.



  • Sicherheit und Komfort:
    Gut beleuchtete Straßen schaffen auch abends eine angenehme Atmosphäre und sind ideal für Läufer und Radfahrer.





Preis



Der lastenfreie FIX-Kaufpreis beträgt € 299.000,-.



Betriebskosten monatlich (lt. Vorschreibung): € 248,60





Sollten Sie Fragen haben oder einen persönlichen Beratungstermin wünschen, zögern Sie bitte nicht mich zu kontaktieren!



Der IMMY ist die renommierteste Auszeichnung für Wiener Makler- und Verwalterbetriebe im Bereich Wohnimmobilien. Wir sind stolz den goldenen IMMY für das Jahr 2019 gewonnen zu haben!



Vielen Dank vor allem an unsere Kunden! Unser Unternehmen wurde auch zum Besten Start Up und in den Jahren 2015, 2018, 2019 und 2020 als Qualitätsmakler ausgezeichnet!



Nicht alle unsere Immobilien finden Sie auf den gängigen Plattformen. Wir freuen uns auf Ihren Besuch auf unserer Homepage unter adonia.at 



Wir weisen ausdrücklich auf unser wirtschaftliches Naheverhältnis mit dem Abgeber/ der Abgeberin hin!  Unsere gesetzlichen Pflichten als Doppelmakler werden dadurch jedoch nicht beeinträchtigt. Irrtum und Änderungen vorbehalten.



Alle hier veröffentlichen Informationen basieren auf den uns von dem Abgeber/ der Abgeberin zur Verfügung gestellten Informationen und wurden nicht selbst erhoben.



Unsere Allgemeinen Geschäftsbedingungen können Sie sowohl in dem Ihnen zugesandten Expose einsehen als auch auf unserer Homepage. Wir weisen ausdrücklich darauf hin, dass diese AGBs Vertragsinhalt werden.



Der Schutz von personenbezogenen Daten ist uns wichtig und auch gesetzlich gefordert. Die Verarbeitung Ihrer personenbezogenen Daten erfolgt nach den datenschutzrechtlichen Bestimmungen. Auf unserer Homepage (unter Datenschutzinformation) finden Sie eine Übersicht die Sie über die wichtigsten Aspekte der Verarbeitung personenbezogener Daten informieren soll.


Wir weisen darauf hin, dass zwischen dem Vermittler und dem zu vermittelnden Dritten ein familiäres oder wirtschaftliches Naheverhältnis besteht.


Der Vermittler ist als Doppelmakler tätig.

Infrastruktur / Entfernungen

Gesundheit
Arzt <250m
Apotheke <250m
Klinik <1.000m
Krankenhaus <750m

Kinder & Schulen
Schule <250m
Kindergarten <250m
Universität <750m
Höhere Schule <1.000m

Nahversorgung
Supermarkt <250m
Bäckerei <250m
Einkaufszentrum <1.000m

Sonstige
Geldautomat <250m
Bank <250m
Post <250m
Polizei <750m

Verkehr
Bus <250m
U-Bahn <500m
Straßenbahn <500m
Bahnhof <500m
Autobahnanschluss <3.000m

Angaben Entfernung Luftlinie / Quelle: OpenStreetMap

Eckdaten Objektnr. 62485

Art: Wohnung
Land: Österreich
Zustand: Erstbezug
Alter: Altbau
Kaufpreis: 298.890,00
Provision: 3% des Kaufpreises zzgl. 20% USt.
Betriebskosten: 140,83 €
MwSt Gesamt: 15,92 €
Wohnfläche: 61,03 m²
Zimmer: 2
Bäder: 1
WC: 1
Heizwärmebedarf: 60,10 kWh/m²a
fGEE: 1,28
Immobilie merken Exposé

Ausstattung

Fliesen, Parkett, Gas, Etagenheizung, Dusche


Immobilie anfragen


Ihre persönliche Beratung

Adonia Realitätenvermittlung GmbH

Luca Schelodetz

Adonia Immobilien GmbH

T 0664/910 15 40