Provisionsfrei: Traumwohnung mit Kamin und Balkon in Nussdorfer Wohnanlage mit In- und Outdoorpool! Garage verfügbar!

Wohnung , 1190 Wien


Nussdorf

Beschreibung der Immobilie

Provisionsfrei: Traumwohnung mit Kamin und Balkon in Nussdorfer Wohnanlage mit In- und Outdoorpool! Garage verfügbar!

Zur Vermietung gelangt eine tolle Wohnung in einem gepflegten Haus im 19. Bezirk in Nussdorfer Grünruhelage!



Das Objekt wurde ca. 2022 umfassend modernisiert. (Parkettböden geschliffen und versiegelt, neue Küche usw.)



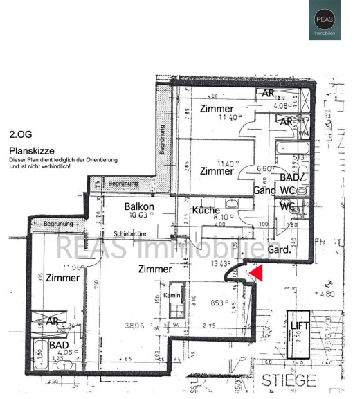
Die Wohnung befindet sich im 2. Stock (mit Lift) und besteht aus:



  • 1 Vorraum mit reichlich Platz für Garderoben usw.
  • 1 Wohn-Esszimmer mit offenem Kaminofen sowie einer großen Glas-Schiebetüre zum Balkon
  • 1 Balkon mit Pergola und Pflanztrögen
  • 1 Küche mit komplett ausgestatteter Einbauküche inkl. aller Geräte sowie Fenstern
  • 1 Gäste WC mit Waschbecken und Spiegel
  • 1 Gang/Flur
  • 3 Schlafzimmer
  • 3 Abstellräume samt Einbauregalen (1x mit Waschmaschinenanschluss)
  • 1 Badezimmer mit Badewanne mit Glas-Faltwand, WC, Waschbecken mit Unter- und Spiegelschrank samt Beleuchtung
  • 1 Badezimmer mit Badewanne mit Glas-Faltwand, Waschbecken mit Unter- und Spiegelschrank samt Beleuchtung

     
  • 1 Kellerabteil

     
  • 1 Garagenplatz direkt im Haus steht zur Verfügung. Konditionen noch zu besprechen.


Zur hochwertigen Ausstattung der Wohnung gehören: 

Moderne Isolierfenster samt Aussenbeschattungen (manuell), Echtholz Parkettböden, Balkon mit Pergola und Pflanztrögen, Kaminofen im Wohn-Esszimmer, großzügie und moderne Einbauküche inkl. aller Geräte, viel Stauraum sowie 3 Abstellräume samt Einbauregalen, uvm.



Zur hochwertigen Ausstattung des Hauses gehören: 

Große Gartenanlage, Gymnastikraum, In- und Outdoor-Pools, Saunaanlage, Waschküche, Fahrradraum, Paket-Box, Garage (Konditionen noch zu besprechen), KFZ Auto-Waschplatz in der Garage, uvm.



Betriebskosten exkl. der monatlich von der Hausverwaltung vorgeschriebenen Wasser & Heizkosten:
Wasserkosten derzeit: Brutto € 117,36 pro Monat

Heizkosten derzeit: Brutto € 136,98 pro Monat



Bruttogesamtmiete Wohnung inkl. Wasser & Heizung: Brutto € 2.525,36 pro Monat
exkl. Garage



Nahversorgung:
Sämtliche Geschäfte des täglichen Bedarfs in der näheren Umgebung.



Öffentliche Verkehrsmittel in unmittelbarer Umgebung:
Straßenbahn: D (Nußdorf, Beethovengang) 100m entfernt



Befristung: Dauer noch zu besprechen. Langfristige Mieter erwünscht! Kein Eigenbedarf!



Gerne stehen wir für Rückfragen oder Besichtigungen zur Verfügung!



Wir ersuchen Sie, bereits in Ihrer Anfrage Ihre vollständigen Kontaktdaten (Adresse, Mail, Telefon) anzugeben, damit wir Ihre Anfrage rascher bearbeiten können. Aufgrund der Nachweispflicht gegenüber dem Abgeber sind wir verpflichtet, vor Bekanntgabe der Adresse diese Daten aufzunehmen und ersuchen um Ihr Verständnis.



Der guten Ordnung halber halten wir fest, dass, sofern im Angebot nicht anders vermerkt, bei erfolgreichem Vertragsabschluss eine Provision anfällt, die den in der Immobilienmaklerverordnung BGBI. 262 und 297/1996 festgelegten Provisionssätzen entspricht. Diese Provisionspflicht besteht auch dann, wenn Sie die Ihnen überlassenen Informationen an Dritte weitergeben.



Sämtliche Ihnen hiermit übermittelte Angaben wurden uns, seitens des Abgebers bekannt gegeben. Eine Garantie auf Richtigkeit und Vollständigkeit können wir nicht übernehmen.

Noch nichts gefunden? Wir informieren Sie über geeignete Immobilienangebote noch vor allen anderen.
Legen Sie jetzt Ihren individuellen Suchagenten unter folgendem Link an. Wir schicken Ihnen passende Immobilien exklusiv vorab zu.

Suchagent anlegen - https://reas-realitaeten-asmus.service.immo/registrieren/de


Hinweis gemäß Energieausweisvorlagegesetz: Ein Energieausweis wurde vom Eigentümer bzw. Verkäufer, nach unserer Aufklärung über die generell geltende Vorlagepflicht, sowie Aufforderung zu seiner Erstellung noch nicht vorgelegt. Daher gilt zumindest eine dem Alter und der Art des Gebäudes entsprechende Gesamtenergieeffizienz als vereinbart. Wir übernehmen keinerlei Gewähr oder Haftung für die tatsächliche Energieeffizienz der angebotenen Immobilie.


Wir weisen darauf hin, dass zwischen dem Vermittler und dem zu vermittelnden Dritten ein familiäres oder wirtschaftliches Naheverhältnis besteht.


Der Immobilienmakler erklärt, dass er – entgegen dem in der Immobilienwirtschaft üblichen Geschäftsgebrauch des Doppelmaklers – einseitig nur für den Vermieter tätig ist.

Hinweis: Einzelne Bilder oder Visualisierungen in den Vermarktungsunterlagen, Exposés oder Inseraten wurden unter Umständen mithilfe von künstlicher Intelligenz (KI) digital bearbeitet und dienen ausschließlich der Veranschaulichung. Sie können vom tatsächlichen Zustand, der Ausstattung oder Ausführung der Immobilien abweichen. Verbindlich sind ausschließlich die Angaben im Kauf-/Mietangebot sowie bei Besichtigung vor Ort.

Infrastruktur / Entfernungen

Gesundheit
Arzt <500m
Apotheke <1.000m
Klinik <1.000m
Krankenhaus <2.500m

Kinder & Schulen
Schule <500m
Kindergarten <1.000m
Universität <1.500m
Höhere Schule <1.500m

Nahversorgung
Supermarkt <500m
Bäckerei <500m
Einkaufszentrum <1.000m

Sonstige
Geldautomat <500m
Bank <500m
Post <500m
Polizei <500m

Verkehr
Bus <500m
U-Bahn <1.500m
Straßenbahn <500m
Bahnhof <500m
Autobahnanschluss <1.000m

Angaben Entfernung Luftlinie / Quelle: OpenStreetMap

Eckdaten Objektnr. 3977

Art: Wohnung
Land: Österreich
Alter: Neubau
Gesamtmiete: 2.271,02
Kaltmiete (netto): 1.600,00 €
Kaltmiete: 2.064,56 €
Provision: Gemäß Erstauftraggeberprinzip bezahlt der Abgeber die Provision.
Betriebskosten: 453,86 €
MwSt Gesamt: 206,46 €
Wohnfläche: 129,92 m²
Nutzfläche: 129,92 m²
Zimmer: 4
Bäder: 2
WC: 2
Balkone: 1
Immobilie merken Exposé

Ausstattung

Zentralheizung, Einbauküche, Personenaufzug, Sauna, Sporteinrichtungen, Swimmingpool, Wasch/Trockenraum


Immobilie anfragen


Ihre persönliche Beratung

REAS Realitäten Asmus GmbH

REAS Immobilien

REAS Realitäten Asmus GmbH

T +43 664 24 77 08 7