| PROVISIONSFREI BIS 06.01.2025 | WEIHNACHTSAKTION | BALKON | ERSTBEZUG NACH SANIERUNG |

Wohnung , 1130 Wien , Auhofstraße


U4 Hütteldorf

Beschreibung der Immobilie

| PROVISIONSFREI BIS 06.01.2025 | WEIHNACHTSAKTION | BALKON | ERSTBEZUG NACH SANIERUNG |

Informationen zum Objekt und zur Ausstattung





Diese außergewöhnliche Wohnung befindet sich in einem stilvollen Altbau in der Auhofstraße im 13. Bezirk und präsentiert sich als Erstbezug nach vollständiger Kernsanierung. Der historische Charakter des Gebäudes wurde bewahrt und zugleich mit modernster Technik kombiniert.



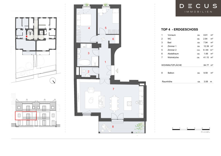
Auf einer großzügigen Wohnfläche von ca. 84,77 m² überzeugt die 3-Zimmer-Wohnung mit hochwertiger Ausstattung und einer außergewöhnlichen Raumwirkung. Die Installation einer Wärmepumpe sowie einer modernen Fußbodenheizung garantiert energieeffizientes Heizen und hohen Wohnkomfort.



Edles Fischgrätparkett, stilvolle Sanitärausstattung und liebevoll aufeinander abgestimmte Materialien schaffen ein gehobenes Wohnambiente.



Besonders hervorzuheben ist der sonnige Balkon mit ca. 9,59 m², der den Wohnraum ins Freie erweitert und Platz für gemütliche Aufenthalte bietet.



Zwei praktische Abstellräume innerhalb der Wohnung sorgen zusätzlich für optimal nutzbare Stauraumflächen.



Die Betriebskosten inkl. Lift-BK sind mit 2,80 €/m²/Monat Netto kalkuliert.





Raumprogramm






  • Großzügiger Vorraum – zentraler Zugang zu allen Räumen



  • Wohnküche – heller, weitläufiger Wohn- und Essbereich mit Zugang zum Balkon



  • Schlafzimmer 1 – ruhiger, gut proportionierter Raum



  • Schlafzimmer 2 – vielseitig nutzbar, ideal als Kinder-, Arbeits- oder Gästezimmer



  • Badezimmer – hochwertig ausgestattet mit freistehender Badewanne, Dusche und Handwaschbecken



  • Separates WC – modern ausgeführt



  • Abstellnische – optimal für Vorräte, Haushaltsgeräte und zusätzlichen Stauraum



  • Balkon (ca. 9,59 m²) – südseitig ausgerichtet, ideal für Entspannung im Freien






Lage





Die Wohnung befindet sich in der Auhofstraße im 13. Bezirk (Hietzing), einer der attraktivsten Wohnlagen Wiens. Die Gegend zeichnet sich durch ihre ruhige, grüne Umgebung und gleichzeitig sehr gute Anbindung an den öffentlichen Verkehr aus.



Die U4-Station Hütteldorf ist in unmittelbarer Nähe und ermöglicht eine schnelle Verbindung in die Innenstadt. Zusätzlich bieten der Bahnhof Hütteldorf und mehrere Buslinien optimale Verkehrsanbindungen.



Im Umfeld finden sich vielfältige Einkaufsmöglichkeiten, Schulen, Cafés und Restaurants. Für Erholung und sportliche Aktivitäten liegen der Wienerwald, der Tiergarten Schönbrunn sowie zahlreiche Parks und Spazierwege praktisch vor der Haustüre.



Diese Lage vereint hohe Lebensqualität, Urbanität und Naturnähe – ideal für anspruchsvolle Stadtbewohner.


Wir weisen darauf hin, dass zwischen dem Vermittler und dem zu vermittelnden Dritten ein familiäres oder wirtschaftliches Naheverhältnis besteht.

DECUS Immobilien GmbH – Wir beleben Räume

Für weitere Informationen und Besichtigungen steht Ihnen gerne Herr Ing. Nicolas Putzlager unter der Mobilnummer +43 660 302 61 70und per E-Mail unter putzlager@decus.at persönlich zur Verfügung.

www.decus.at | office@decus.at 

Wichtige Informationen

Bitte beachten Sie, dass per 13.06.2014 eine neue Richtlinie für Fernabsatz- und Auswärtsgeschäfte in Kraft getreten ist.

Ab 1.4.2024 entfallen die Grundbuchs- und Pfandrechtseintragungsgebühren vorübergehend für Eigenheime bis zu einer Bemessungsgrundlage von EUR 500.000,-. Voraussetzung ist das dringende Wohnbedürfnis, ausgenommen davon sind vererbte oder geschenkte Immobilien. Die Befreiung ist jedoch für den Einzelfall zu prüfen, DECUS Immobilien übernimmt hierzu keine Haftung.

Ab 01.07.2023 gilt das Erstauftraggeber-Prinzip bei Wohnungsmietverträgen, ausgenommen davon sind Dienst-/Natural-/Werkswohnungen. Wir dürfen gem. § 17 Maklergesetz darauf hinweisen, dass wir auf die Doppelmaklertätigkeit gem. § 5 Maklergesetz bei Wohnungsmietverträgen verzichten und nur noch einseitig tätig sind (bei den restlichen Vermittlungsarten nicht) und ein wirtschaftliches Naheverhältnis zu unseren Auftraggebern besteht. 

Im Falle eines Abschlusses mit Ihnen oder einem von Ihnen namhaft gemachten Dritten bzw. bei beidseitiger Willensübereinstimmung beträgt unser Honorar (lt. Honorarverordnung für Immobilienmakler) 2 Bruttomonatsmieten (BMM) bei Dienst-/Natural-/Werkwohnungen sowie Suchaufträgen, 3 BMM bei Gewerbe-, PKW-, Keller- und Lagermietverträgen sowie bei Kaufobjekten 3 % des Kaufpreises, zuzüglich der gesetzlichen Umsatzsteuer.

Dieses Objekt wird Ihnen unverbindlich und freibleibend angeboten. Oben angeführte Angaben basieren auf Informationen und Unterlagen des Eigentümers und sind unsererseits ohne Gewähr.

Nähere Informationen sowie unsere AGBs und die Nebenkostenübersichtsblatt finden Sie auf unserer Homepage www.decus.at unter "Service" - "Rechtliches zum FAGG" sowie im Anhang der zugesendeten Objekt-Exposés!

Infrastruktur / Entfernungen

Gesundheit
Arzt <500m
Apotheke <750m
Klinik <2.750m
Krankenhaus <1.000m

Kinder & Schulen
Schule <500m
Kindergarten <500m
Universität <2.000m
Höhere Schule <5.000m

Nahversorgung
Supermarkt <250m
Bäckerei <750m
Einkaufszentrum <3.000m

Sonstige
Geldautomat <500m
Bank <500m
Post <1.750m
Polizei <750m

Verkehr
Bus <500m
Straßenbahn <500m
U-Bahn <500m
Bahnhof <750m
Autobahnanschluss <2.750m

Angaben Entfernung Luftlinie / Quelle: OpenStreetMap

Eckdaten Objektnr. 1151630

Art: Wohnung
Land: Österreich
Alter: Altbau
Kaufpreis: 798.000,00
Provision: Provision bezahlt der Abgeber.
Wohnfläche: 84,77 m²
Nutzfläche: 94,38 m²
Zimmer: 3
Bäder: 1
WC: 1
Balkone: 1
Heizwärmebedarf:  B  43,46 kWh/m²a
fGEE:  A  0,83
Immobilie merken Exposé

Immobilie anfragen


Ihre persönliche Beratung

DECUS Immobilien GmbH

Ing. Nicolas Putzlager

DECUS Immobilien GmbH

T +43 660 302 61 70

H +43 660 302 61 70

F +43 1 35 600 10