Beschreibung der Immobilie
Ein Zuhause mit Stil, Nachhaltigkeit und Weitblick
Ein Haus mit Stil und Verantwortung
Zeitlos, elegant und zukunftsorientiert. Das Wohnprojekt beim Stadtpark Atzgersdorf und der Liesing, vereint urbanen Lifestyle mit nachhaltiger Architektur.
Auf fünf Etagen und zwei Dachgeschossen erstrecken sich nur 38 Eigentumswohnungen, die Design, Komfort und Lebensqualität auf harmonische Weise verbinden. Großzügige Freiflächen, ein durchdachtes Energiekonzept und eine offene, grüne Umgebung machen das Projekt zu einem besonderen Ort für alle, die das Leben im Süden Wiens genießen möchten.
Das architektonische Konzept setzt auf klare Linien und natürliche Materialien. Neben stilvoll gestalteten Wohnräumen überzeugt vor allem das CO₂-neutrale Wärme- und Temperierungssystem, das durch Erdwärme und Sonnenenergie eine nachhaltige und effiziente Energieversorgung ermöglicht. Eine Investition in modernes Wohnen. Ökologisch, komfortabel und zukunftssicher.
Ausstattung mit Anspruch
Die Apartments beeindrucken mit hochwertiger Ausstattung, intelligenter Raumaufteilung und liebevollen Details, die das Wohnen besonders angenehm machen.
Eichenparkettböden, Holz-Alu-Fenster und Außenjalousien schaffen ein stilvolles Ambiente mit natürlicher Wärme. Dank Smart-Home-Vorbereitung, Fußbodenheizung und Raumkühlung über Bauteilaktivierung genießen Bewohnerinnen und Bewohner ein ausgewogenes Wohnklima zu jeder Jahreszeit.
Das nachhaltige Heiz- und Kühlsystem nutzt die natürlichen Ressourcen des Grundstücks optimal – für ein umweltfreundliches, effizientes und leistbares Energiekonzept.
Ergänzt wird das Angebot durch 23 Tiefgaragenstellplätze, die teilweise bereits für Elektromobilität vorbereitet sind. Gemeinschaftsflächen wie der Garten mit Spielplatz sowie ein Atelier für Kunstschaffende fördern das Miteinander und schaffen einen besonderen Mehrwert.
Lage & Umgebung:
- 38 Eigentumswohnungen mit 2 bis 4 Zimmern
- Wohnflächen von ca. 39 bis 109 m²
- Alle Wohnungen mit Balkon, Terrasse oder Garten
- Eichenparkett, Holz-Alu-Fenster mit elektr. Außenjalousien
- Fußbodenheizung & Raumkühlung über Bauteilaktivierung
- 23 Tiefgaragenplätze (teils E-Mobility ready)
- Großer Gemeinschaftsgarten & Spielplatz im Grünen
- Nachhaltiges CO₂-neutrales Energiesystem
Wohnen im Kulturviertel der Zukunft! Das Projekt liegt mitten in Atzgersdorf, einem der spannendsten Stadtentwicklungsgebiete Wiens. Die Nähe zum neu gestalteten Stadtpark Atzgersdorf, zum Kulturzentrum F23, zu Schulen, Kindergarten und Nahversorgung macht das Viertel zu einem lebendigen, familienfreundlichen Ort mit urbanem Flair.
Zwischen grüner Ruhe und Stadtnähe bietet die Lage beides: Der Liesingbach mit seinen Spazier- und Radwegen liegt nur wenige Gehminuten entfernt, während man mit öffentlichen Verkehrsmitteln in rund 35 Minuten das Wiener Stadtzentrum erreicht.
Die geplante S-Bahn-Station Rosenhügel wird die Anbindung künftig noch weiter verbessern. Bereits jetzt sorgt die Buslinie 62A für optimale Mobilität direkt vor der Haustür.
Ein Zuhause, das Natur, Kultur und urbanes Leben in perfekter Balance vereint, für Menschen, die das Besondere suchen.
Die Bilder wurden teils mittels KI virtuell möbliert um eine bessere Vorstellung der Einrichtungsmöglichkeiten zu vermitteln.
Wir weisen darauf hin, dass zwischen dem Vermittler und dem zu vermittelnden Dritten ein familiäres oder wirtschaftliches Naheverhältnis besteht.
Der Vermittler ist als Doppelmakler tätig.
Infrastruktur / Entfernungen
Gesundheit
Arzt <1.500m
Apotheke <1.000m
Klinik <1.000m
Krankenhaus <1.500m
Kinder & Schulen
Schule <500m
Kindergarten <500m
Universität <4.500m
Höhere Schule <4.000m
Nahversorgung
Supermarkt <500m
Bäckerei <500m
Einkaufszentrum <1.500m
Sonstige
Geldautomat <1.000m
Bank <1.000m
Post <1.500m
Polizei <1.500m
Verkehr
Bus <500m
U-Bahn <1.500m
Straßenbahn <2.000m
Bahnhof <1.000m
Autobahnanschluss <2.000m
Angaben Entfernung Luftlinie / Quelle: OpenStreetMap
Eckdaten Objektnr. 90413
| Art: | Wohnung |
| Land: | Österreich |
| Baujahr: | 2024 |
| Zustand: | Erstbezug |
| Alter: | Neubau |
| Kaufpreis: | 460.000,00 € |
| Betriebskosten: | 183,18 € |
| MwSt Gesamt: | 18,32 € |
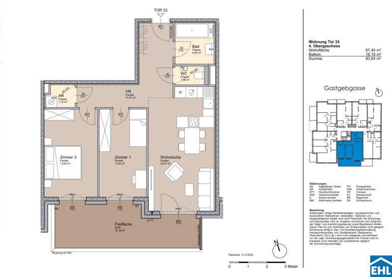
| Wohnfläche: | 67,45 m² |
| Nutzfläche: | 83,64 m² |
| Zimmer: | 3 |
| Bäder: | 1 |
| WC: | 2 |
| Balkone: | 1 |
| Heizwärmebedarf: | B 26,50 kWh/m²a |
| fGEE: | A 0,74 |
Ausstattung
Fliesen, Parkett, Erdwärme, Fußbodenheizung, Personenaufzug, Südbalkon, Badewanne, Tiefgarage
Ihre persönliche Beratung
Dieser Makler ist ein offizielles Mitglied des IR – ir.at Mehr Erfahren
