AB 01.01.2026 VERFÜGBAR | GEGENÜBER FH JOANNEUM I 3. STOCK I MODERN SANIERT I SEHR HELL I BIM VOR DER HAUSTÜRE I HAUSTIERE WILLKOMMEN I PROJEKT WOHNEN

Wohnung , 8020 Graz , Eggenberger Straße 48


Die traumhafte Mietwohnung in der Eggenberger Straße 48, 8020 Graz, bietet eine ideale Lage mit hervorragender Anbindung und vielfältigen Annehmlichkeiten in der Nähe. Direkt gegenüber der Wohnung befindet sich die FH Joanneum, eine der renommiertesten Hochschulen in Graz. Die Straßenbahnhaltestelle ist nur wenige Schritte entfernt, was Ihnen eine schnelle und bequeme Verbindung in die Innenstadt ermöglicht. Einkaufsmöglichkeiten wie Supermärkte und kleine Läden sind fußläufig erreichbar, sodass Sie alles für den täglichen Bedarf in unmittelbarer Nähe finden

Beschreibung der Immobilie

AB 01.01.2026 VERFÜGBAR | GEGENÜBER FH JOANNEUM I 3. STOCK I MODERN SANIERT I SEHR HELL I BIM VOR DER HAUSTÜRE I HAUSTIERE WILLKOMMEN I PROJEKT WOHNEN

Herzlich Willkommen im neuen Zuhause: Moderne Wohlfühloase in der Eggenberger Straße 48 - Ideal für Singles, Pärchen und tierische Mitbewohner!





Highlights:




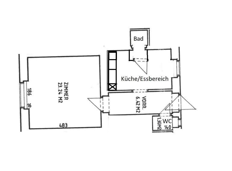
  • Strahlende 48 m² Altbauwohnung im dritten Stock mit Lift



  • Einladender Vorraum, perfekt beleuchtet und mit genügend Platz für Ihre Garderobe



  • Moderne Küche mit allem Komfort: Kühlschrank, Backrohr, Ceranfeld, Dunstabzug, Spüle, Geschirrspüler und gemütlichem Essbereich



  • Badezimmer mit Dusche, Waschbecken, Spiegelschrank und Handtuchwärmer – hell und modern gestaltet



  • Großes Wohnschlafzimmer mit edlem Parkettboden und viel Tageslicht



  • Separates WC mit Fenster, direkt vom einladenden Vorraum aus zugänglich



  • Genießen Sie entspannte Stunden im Sommer auf dem Balkon im Innenhof (Allgemeiner Balkon)



  • Wohltuende Fernwärme sorgt für behagliche Wärme



  • Verfügbar ab 01.01.2026 – rechtzeitig planen und vormerken!












Wohlfühlwohnung mit Balkon & Lift – ab 01.01.2026 bezugsfrei in Eggenberg



Ein herzliches Willkommen in Ihrem neuen Zuhause in der Eggenberger Straße 48! Der einladende Vorraum, erhellt durch Deckenspots, bietet ausreichend Platz für Ihre Garderobe. Die moderne Küche ist komplett ausgestattet und verfügt über einen gemütlichen Essbereich – ideal für entspanntes Kochen und Genießen.



Das Badezimmer überzeugt mit zeitgemäßer Ausstattung, darunter eine Dusche, ein Waschbecken, ein Spiegelschrank und ein Handtuchwärmer. Der Waschmaschinenanschluss befindet sich in der Küche. Das großzügige Wohnschlafzimmer mit edlem Parkettboden ist perfekt für Singles oder Pärchen, die ein ruhiges und gleichzeitig zentrales Zuhause suchen.



Die Wohnung ist ab dem 01.01.2026 verfügbar – ideal für alle, die frühzeitig planen und sich ein modernes Zuhause in Top-Lage sichern möchten.



Die Lage in der Eggenberger Straße bietet nicht nur eine ausgezeichnete Anbindung an die FH Joanneum, sondern auch Einkaufsmöglichkeiten direkt ums Eck. Die Straßenbahnhaltestelle vor dem Haus sorgt für eine bequeme Verbindung ins Grazer Stadtzentrum.



Haustiere sind herzlich willkommen und machen Ihr neues Zuhause komplett!







Ich freue mich auf Ihre Anfrage und darauf, Ihnen diese wunderschöne Wohnung bei einem persönlichen Besichtigungstermin präsentieren zu dürfen.


Der Immobilienmakler erklärt, dass er – entgegen dem in der Immobilienwirtschaft üblichen Geschäftsgebrauch des Doppelmaklers – einseitig nur für den Vermieter tätig ist.

Infrastruktur / Entfernungen

Gesundheit
Arzt <75m
Apotheke <600m
Klinik <625m
Krankenhaus <1.125m

Kinder & Schulen
Schule <250m
Kindergarten <250m
Universität <125m
Höhere Schule <175m

Nahversorgung
Supermarkt <100m
Bäckerei <450m
Einkaufszentrum <775m

Sonstige
Geldautomat <50m
Bank <50m
Post <300m
Polizei <500m

Verkehr
Bus <25m
Straßenbahn <25m
Autobahnanschluss <4.175m
Bahnhof <400m
Flughafen <9.450m

Angaben Entfernung Luftlinie / Quelle: OpenStreetMap

Eckdaten Objektnr. 38208

Art: Wohnung
Land: Österreich
Alter: Altbau
Gesamtmiete: 559,91
Kaltmiete (netto): 400,01 €
Kaltmiete: 509,01 €
Provision: Gemäß Erstauftraggeberprinzip bezahlt der Abgeber die Provision.
Betriebskosten: 109,00 €
MwSt Gesamt: 50,90 €
Wohnfläche: 47,53 m²
Zimmer: 1
Bäder: 1
WC: 1
Heizwärmebedarf:  D  129,57 kWh/m²a
Immobilie merken Exposé

Ausstattung

Parkett, Fernwärme, Einbauküche, Personenaufzug, Dusche


Immobilie anfragen


Ihre persönliche Beratung

Projekt Wohnen Gruppe GmbH

Sabina Maitz

PW Projekt Wohnen Immobilienvermittlung GmbH

T 0316850850

H +43 664 427 00 57