In MAUER uneinsichtiges Gartenparadies

Haus - Einfamilienhaus, 1230 Wien,Liesing


Beschreibung der Immobilie

In MAUER uneinsichtiges Gartenparadies

Uneinsichtiges Traumgrundstück mit Einfamilienhaus in 1230 Wien
Lage



Dieses Einfamilienhaus befindet sich in einer der begehrtesten Wohngegenden des 23. Bezirks – in **Mauer**, unweit des idyllischen Maurer Waldes und der berühmten Weinberge. Die ruhige Fahnengrundstück-Situation sorgt für absolute Privatsphäre, die Straße ist uneinsichtig und vermittelt ein Gefühl von Abgeschiedenheit, während Einkaufsmöglichkeiten, Schulen und öffentliche Verkehrsmittel bequem erreichbar sind.

Zahlreiche Sport- und Freizeitmöglichkeiten befinden sich in unmittelbarer Umgebung.




Grundstück



  • Größe: **863 m²**
  • Beschaffenheit: eben, idyllisch und bestens nutzbar
  • Pool mit Überdachung
  • Outdoor-Saunahaus
  • PKW-Einfahrt vorhanden



Haus
Das Einfamilienhaus mit **Flachdach** ist nicht unterkellert und bietet eine großzügige Raumaufteilung mit vielfältigen Möglichkeiten zur individuellen Gestaltung. Das Gebäude ist **sanierungsbedürftig**, birgt aber enormes Potenzial für modernes Wohnen in Bestlage.




Erdgeschoss (ca. 76,3 m² + 12,65 m² Wintergarten)



  • Großzügiger, heller Wohnbereich
  • Moderne, offene Küche mit Verbindung zum Wohnbereich
  • Wintergarten mit direktem Gartenzugang
  • Zwei zusätzliche Zimmer (flexibel nutzbar, z. B. als Büro, Gäste- oder Hobbyräume)
  • Möglichkeit zur Errichtung eines zusätzlichen Badezimmers



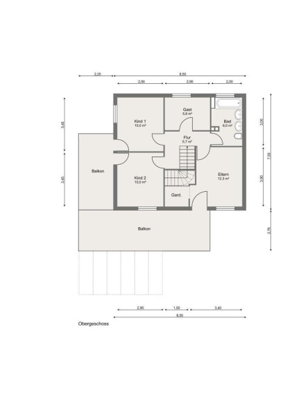
Obergeschoss (ca. 53,6 m² + ca. 18 m² Terrasse)



  • Drei Schlafzimmer, davon ein großes Schlafzimmer mit zwei Türen – bei Bedarf teilbar in zwei Räume
  • Badezimmer mit Tageslicht
  • Terrasse (ca. 18 m²), von allen Schlafzimmern aus begehbar


Ausstattung & Besonderheiten



  • Gasheizung vorhanden
  • Wintergarten mit Blick in den Garten
  • Pool mit Überdachung – ideal zum ganzjährigen Nutzen
  • Outdoor-Saunahaus
  • Großzügige Sonnenterrasse im Obergeschoß
  • PKW-Einstellung direkt am Grundstück möglich


Highlights



  • Maurer Premium-Lage** inmitten von Natur und Weinbergen
  • Ruhiges Fahnengrundstück, uneinsichtig von der Straße
  • Familiengerechte Raumaufteilung, flexibel adaptierbar
  • Großzügiges Grundstück mit vielen Freizeitmöglichkeiten
  • Perfekte Kombination aus idyllischer Ruhe und städtischer Anbindung


Verkehrsanbindung & Infrastruktur



  • Öffentliche Verkehrsmittel (Buslinien, Anschluss an U6 und S-Bahn in erreichbarer Nähe)
  • Geschäfte des täglichen Bedarfs, Schulen und Kindergärten in wenigen Minuten erreichbar
  • Nähe zu Sportanlagen, Rad- und Wanderwegen, sowie den traditionsreichen Heurigen von Mauer



Kaufpreis: € 1.200.000,--

Käuferprovision: 3% + 20% USt.



--------------------------------------------------------------------------------



RECHTLICHE HINWEISE:

Wir ersuchen um Verständnis, dass wir von Ihnen vor der Zusendung des Exposés die Bestätigung des sofortigen Tätigwerdens sowie die Bestätigung über die Aufklärung des Rücktrittrechtes gemäß FAGG (Fern- und Auswärtsgeschäfte-Gesetz) benötigen. Anschließend freuen wir uns über eine Terminvereinbarung.



Am 20. März 2024 wurde im Nationalrat die temporäre Befreiung von den Gebühren für die Eintragung von Eigentumsrecht und Pfandrecht (Bis 500.000 Euro) im Grundbuch bei Erwerb von Wohnraum beschlossen. (Zu Beachten sind die Bedingungen lt. Bundesministerium für Justiz).



Die Verpflichtung zur Zahlung einer Vermittlungsprovision entsteht für Sie selbstverständlich nur bei erfolgreicher Vermittlung und wird erst mit der Rechtswirksamkeit des vermittelten Geschäftes fällig.

Wir können, aufgrund des bestehenden Geschäftsgebrauchs, als Doppelmakler tätig sein.



Die Angaben beruhen teilweise auf Informationen des Eigentümers und sind ohne Gewähr!




Der Vermittler ist als Doppelmakler tätig.

Infrastruktur / Entfernungen

Gesundheit
Arzt <1.000m
Apotheke <1.000m
Klinik <2.000m
Krankenhaus <2.000m

Kinder & Schulen
Schule <500m
Kindergarten <1.000m
Universität <3.500m
Höhere Schule <6.500m

Nahversorgung
Supermarkt <1.000m
Bäckerei <1.000m
Einkaufszentrum <2.500m

Sonstige
Geldautomat <1.000m
Bank <1.000m
Post <1.000m
Polizei <3.000m

Verkehr
Bus <500m
Straßenbahn <1.000m
U-Bahn <4.500m
Bahnhof <2.500m
Autobahnanschluss <4.500m

Angaben Entfernung Luftlinie / Quelle: OpenStreetMap

Eckdaten Objektnr. 1609/46426

Art: Haus - Einfamilienhaus
Land: Österreich
Baujahr: 1973
Zustand: Sanierungsbeduerftig
Alter: Neubau
Kaufpreis: 1.200.000,00
Provision: 3% des Kaufpreises zzgl. 20% USt.
Wohnfläche: 143,00 m²
Grundstücksfl.: 863,00 m²
Zimmer: 6,50
Bäder: 1
WC: 2
Terrassen: 1
Heizwärmebedarf:  G  274,00 kWh/m²a
fGEE:  E  3,13
Immobilie merken Exposé

Ausstattung

Gas, Kamin, Zentralheizung, Einbauküche, Badewanne, Kabel/Satelliten-TV, Sauna, Swimmingpool


Immobilie anfragen


Ihre persönliche Beratung

RE/MAX First - REM Immobilienmakler GmbH & Co KG

Akad. M&SWU Alexandra Fellner

RE/MAX First - REM Immobilienmakler Gmbh & Co KG

T +43 699 11 97 63 36

H +43 699 11 97 63 36