Sehr gut sichtbares Gebäude

Einzelhandel , 1210 Wien


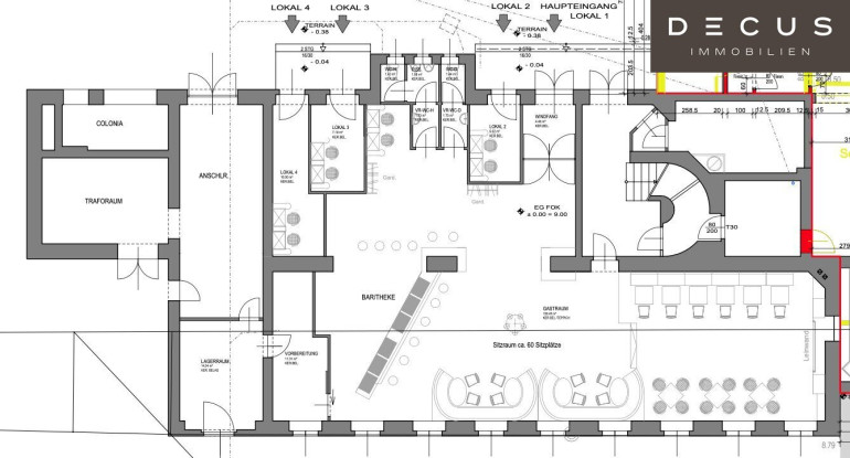
Beschreibung der Immobilie

Sehr gut sichtbares Gebäude

Objekt und Lage:



Die Liegenschaft liegt in der Prager Straße. Gleich nebenan befindet sich eine Tankstelle mit einer Autowaschanlage, hinter dem Gebäude ist großer Supermarkt (Billa Plus) samt großem Parkplatz. 





Büroflächen:



Die Bürofläche im 2. Obergeschoss befindet sich derzeit im Rohbau. Hier kann man seine eigenen Vorstellungen gut verwirklichen. Die Dauer der Fertigstellung muss mit dem Vermieter individuell besprochen werden.





Alle Preisangaben verstehen sich zzgl. der gesetzl. Ust.



Alle Angaben ohne Gewähr, Irrtümer und Änderungen vorbehalten.


Wir weisen darauf hin, dass zwischen dem Vermittler und dem zu vermittelnden Dritten ein familiäres oder wirtschaftliches Naheverhältnis besteht.


Der Vermittler ist als Doppelmakler tätig.

DECUS Immobilien GmbH – Wir beleben Räume

Für weitere Informationen und Besichtigungen steht Ihnen gerne Frau Mag. (FH) Anita Kronaus-Buchegger unter der Mobilnummer +43 664 16 096 66und per E-Mail unter kronaus@decus.at persönlich zur Verfügung.

www.decus.at | office@decus.at 

Wichtige Informationen

Bitte beachten Sie, dass per 13.06.2014 eine neue Richtlinie für Fernabsatz- und Auswärtsgeschäfte in Kraft getreten ist.

Ab 1.4.2024 entfallen die Grundbuchs- und Pfandrechtseintragungsgebühren vorübergehend für Eigenheime bis zu einer Bemessungsgrundlage von EUR 500.000,-. Voraussetzung ist das dringende Wohnbedürfnis, ausgenommen davon sind vererbte oder geschenkte Immobilien. Die Befreiung ist jedoch für den Einzelfall zu prüfen, DECUS Immobilien übernimmt hierzu keine Haftung.

Ab 01.07.2023 gilt das Erstauftraggeber-Prinzip bei Wohnungsmietverträgen, ausgenommen davon sind Dienst-/Natural-/Werkswohnungen. Wir dürfen gem. § 17 Maklergesetz darauf hinweisen, dass wir auf die Doppelmaklertätigkeit gem. § 5 Maklergesetz bei Wohnungsmietverträgen verzichten und nur noch einseitig tätig sind (bei den restlichen Vermittlungsarten nicht) und ein wirtschaftliches Naheverhältnis zu unseren Auftraggebern besteht. 

Im Falle eines Abschlusses mit Ihnen oder einem von Ihnen namhaft gemachten Dritten bzw. bei beidseitiger Willensübereinstimmung beträgt unser Honorar (lt. Honorarverordnung für Immobilienmakler) 2 Bruttomonatsmieten (BMM) bei Dienst-/Natural-/Werkwohnungen sowie Suchaufträgen, 3 BMM bei Gewerbe-, PKW-, Keller- und Lagermietverträgen sowie bei Kaufobjekten 3 % des Kaufpreises, zuzüglich der gesetzlichen Umsatzsteuer.

Dieses Objekt wird Ihnen unverbindlich und freibleibend angeboten. Oben angeführte Angaben basieren auf Informationen und Unterlagen des Eigentümers und sind unsererseits ohne Gewähr.

Nähere Informationen sowie unsere AGBs und die Nebenkostenübersichtsblatt finden Sie auf unserer Homepage www.decus.at unter "Service" - "Rechtliches zum FAGG" sowie im Anhang der zugesendeten Objekt-Exposés!

Infrastruktur / Entfernungen

Gesundheit
Arzt <1.000m
Apotheke <500m
Klinik <2.000m
Krankenhaus <2.000m

Kinder & Schulen
Schule <500m
Kindergarten <1.000m
Universität <2.000m
Höhere Schule <2.000m

Nahversorgung
Supermarkt <500m
Bäckerei <1.500m
Einkaufszentrum <1.500m

Sonstige
Geldautomat <1.500m
Bank <1.500m
Post <1.500m
Polizei <1.500m

Verkehr
Bus <500m
U-Bahn <2.500m
Straßenbahn <500m
Bahnhof <1.000m
Autobahnanschluss <1.500m

Angaben Entfernung Luftlinie / Quelle: OpenStreetMap

Verfügbare Flächen

Stiege/Bauteil


Stockwerk
Top
Art
Fläche
Terrasse
Nettomiete/m²
BK/m²

2. Etage
-
Büro / Praxis
188,50 m2
-
8,00 €
3,00 €

-
-
Einzelhandel
221,28 m2
-
11,30 €
1,84 €

verfügbare flächen

Stiege/Bauteil

Stockwerk
Top
Art
Fläche
Teilbar ab
Terrasse
Nettomiete/m2 von-bis
BK/m2
2. Etage
-
Büro / Praxis
188,50 m2
-
-
8,00 - 8,00 €
3,00 €
Stockwerk
Top
Art
Fläche
Teilbar ab
Terrasse
Nettomiete/m2 von-bis
BK/m2
-
-
Einzelhandel
221,28 m2
-
-
11,30 - 11,30 €
1,84 €

Eckdaten Objektnr. 1151527/5

Art: Einzelhandel
Land: Österreich
Kaltmiete (netto): 2.500,46 €
Miete / m²: 8,00 € - 11,30 €
Provision: 3 Bruttomonatsmieten zzgl. 20% USt.
Betriebskosten: 407,16 €
Heizkosten: 177,02 €
Nutzfläche: 221,28 m²
Immobilie merken Exposé

Immobilie anfragen


Ihre persönliche Beratung

DECUS Immobilien GmbH

Mag. (FH) Anita Kronaus-Buchegger

DECUS Immobilien GmbH

T +43 664 16 096 66

H +43 664 16 096 66

F +43 1 35 600 10