Beschreibung der Immobilie
Modern wohnen am Stadtpark Atzgersdorf
Ein Investment mit Stil und Verantwortung
Zeitlos. Nachhaltig. Wertbeständig.
Das Wohnprojekt beim Stadtpark Atzgersdorf und der Liesing vereint architektonische Eleganz mit zukunftsorientierter Bauweise – und bietet Anleger:innen die Möglichkeit, in eine Immobilie mit hervorragendem Entwicklungspotenzial zu investieren.
Auf fünf Etagen und zwei Dachgeschossen entstehen 38 hochwertige Eigentumswohnungen, die durch nachhaltige Bauweise, klare Architektur und intelligente Grundrisse überzeugen. Das Projekt kombiniert urbanen Lifestyle mit ökologischer Verantwortung – eine Kombination, die in der Nachfrage von Eigennutzer:innen wie auch Mieter:innen zunehmend im Vordergrund steht.
Fakten im Überblick
38 Eigentumswohnungen mit 2 bis 4 Zimmern
Wohnflächen von ca. 39 bis 109 m²
CO₂-neutrales Energiesystem
Top-Vermietungslage im Süden Wiens
Hohe Wertbeständigkeit durch nachhaltige Bauweise und steigende Nachfrage
Nachhaltige Wertanlage in bester Lage
Die Immobilie befindet sich im Herzen von Atzgersdorf, einem der dynamischsten Stadtentwicklungsgebiete Wiens.
Dank der Nähe zum Stadtpark Atzgersdorf, dem Kulturzentrum F23 sowie zu Schulen, Nahversorgern und öffentlichen Verkehrsmitteln bietet die Lage sowohl hohe Lebensqualität als auch stabile Vermietbarkeit.
Die geplante S-Bahn-Station Rosenhügel und bestehende Linien wie der Bus 62A sichern eine exzellente Anbindung an die Innenstadt – ein entscheidender Faktor für langfristige Wertentwicklung.
Effizient. Modern. Zukunftssicher.
Das architektonische Konzept überzeugt durch klare Linien, natürliche Materialien und CO₂-neutrale Energietechnik.
Ein innovatives Heiz- und Kühlsystem mit Erdwärme und Sonnenenergie sorgt für niedrige Betriebskosten und entspricht modernsten ökologischen Standards – ein echter Pluspunkt für nachhaltiges Investment.
Ausstattungs-Highlights:
Eichenparkett, Holz-Alu-Fenster mit elektrischen Außenjalousien
Fußbodenheizung & Kühlung über Bauteilaktivierung
Smart-Home-Vorbereitung für moderne Wohntechnologie
23 Tiefgaragenplätze, teils E-Mobility ready
Großzügige Freiflächen bei jeder Wohnung: Balkon, Terrasse oder Garten
Gemeinschaftsgarten mit Spielplatz & Atelierbereich
Zu erwartender Mietertrag
von EUR 14,25 bis EUR 15,50 netto/m²
Kaufpreise der Vorsorgewohnungen
von EUR 189.732,14,- bis EUR 696.428,57- netto zzgl. 20% USt.
Provisionsfrei für den Käufer
Fertigstellung: 2024
Bei diesem Angebot handelt es sich um eine Vorsorgewohnung, die zu Vermietungszwecken erworben wird. Der angegebene Kaufpreis versteht sich daher zzgl. 20% USt. Diese Daten sind vorbehaltlich möglicher Änderungen.
Wir weisen darauf hin, dass zwischen dem Vermittler und dem zu vermittelnden Dritten ein familiäres oder wirtschaftliches Naheverhältnis besteht.
Der Vermittler ist als Doppelmakler tätig.
Infrastruktur / Entfernungen
Gesundheit
Arzt <1.500m
Apotheke <1.000m
Klinik <1.000m
Krankenhaus <1.500m
Kinder & Schulen
Schule <500m
Kindergarten <500m
Universität <4.500m
Höhere Schule <4.000m
Nahversorgung
Supermarkt <500m
Bäckerei <500m
Einkaufszentrum <1.500m
Sonstige
Geldautomat <1.000m
Bank <1.000m
Post <1.500m
Polizei <1.500m
Verkehr
Bus <500m
U-Bahn <1.500m
Straßenbahn <2.000m
Bahnhof <1.000m
Autobahnanschluss <2.000m
Angaben Entfernung Luftlinie / Quelle: OpenStreetMap
Eckdaten Objektnr. 90443
| Art: | Wohnung |
| Land: | Österreich |
| Baujahr: | 2024 |
| Zustand: | Erstbezug |
| Alter: | Neubau |
| Kaufpreis: | 348.214,29 € |
| Provision: | Provision bezahlt der Abgeber. |
| Betriebskosten: | 170,28 € |
| MwSt Gesamt: | 17,03 € |
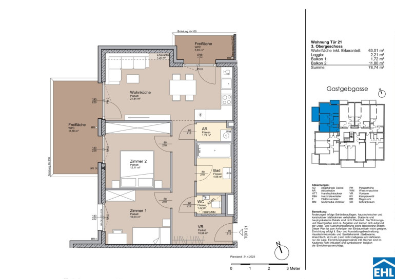
| Wohnfläche: | 63,01 m² |
| Nutzfläche: | 78,74 m² |
| Zimmer: | 3 |
| Bäder: | 1 |
| WC: | 1 |
| Balkone: | 2 |
| Heizwärmebedarf: | B 26,50 kWh/m²a |
| fGEE: | A 0,74 |
Ausstattung
Fliesen, Parkett, Erdwärme, Fußbodenheizung, Personenaufzug, Nordbalkon, Westbalkon, Badewanne, Tiefgarage
Ihre persönliche Beratung
Dieser Makler ist ein offizielles Mitglied des IR – ir.at Mehr Erfahren
