AKTION 2025 ein BAUMEISTER AUSBAUHAUS mit FIXPREISGARANTIE !

Haus - Einfamilienhaus, 4300 St. Valentin


WIR BAUEN DORT, WO SIE ZUHAUSE SEIN WOLLEN – ST. VALENTIN UND UMGEBUNG st. valentin? ernsthofen? st. pantaleon? oder ganz was anderes? wir bauen ihr haus – sie sagen uns nur, wo. unsere häuser gibt’s ohne grundstück, dafür mit klaren preisen, ehrlicher arbeit und ohne vertrags-kleingedrucktes. 👉 ob strengberg oder haag – sie haben das grundstück, wir liefern das haus dazu.

Beschreibung der Immobilie

AKTION 2025 ein BAUMEISTER AUSBAUHAUS mit FIXPREISGARANTIE !

FIXPREISAKTION 2025



unsere spezialaktion für das auslaufende jahr 2025 – sichern sie sich jetzt ihr ausbauhaus mit fixpreisgarantie!



🛠️ Pack’s an. Dein Haus. Dein Projekt.



Ausbauhaus EFH – rohbau um € 139.444,00




1️⃣ nur gebäude – kein grundstück enthalten



unser angebot betrifft ausschließlich das gebäude – das grundstück ist separat zu erwerben.

 



2️⃣ selber machen, selbst entscheiden



du willst selbst mit anpacken – oder einfach stufenweise ausbauen?

wir bieten unser einfamilienhaus in modularen ausbaustufen an:

✔️ rohbau

✔️ mit fenstern & türen

✔️ mit dach

✔️ mit vorbereiteter technik

✔️ bis hin zur belagsfertigen übergabe



alles mit fixpreisen, ehrlicher transparenz & bauzeitplanung nach deinem rhythmus.





3️⃣ ein grundriss, viele möglichkeiten



die pläne dienen als preisgrundlage – du kannst innen alles verändern oder sogar mit eigenem plan starten.

du brauchst hilfe bei der planung?

✅ im rohbaupreis ist ein einreichplan inkludiert

✅ unser planungsteam unterstützt dich – ohne architektenpflicht





4️⃣ bauen mit verstand – ganz nach deinem stil



🧱 ziegelmassiv

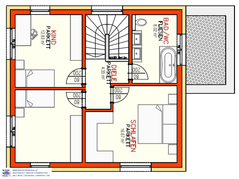
📐 122 m² wohnfläche

📎 flexible ausführung

🔧 technik & gewerke nach wunsch

☀️ pv-vorbereitung möglich

🌳 carport & pool optional





5️⃣ exposé anfordern = klarheit gewinnen



Wenn du selbst anpacken willst, aber nicht bei null anfangen möchtest –

dann ist dieses Ausbauhaus vielleicht genau das Richtige.



Du bekommst ein sicheres Fundament und volle Gestaltungsfreiheit –

mit oder ohne Plan – mit oder ohne Muskelkater.



🔍 Alle Detailunterlagen bekommst du im persönlichen Exposé – einfach anfragen.



das sind keine leeren floskeln – unsere fundierte kenntnis der bauwirtschaftlichen lage und kollaboration mit mehreren renommierten baumeisterfirmen erlauben uns dieses realistische fixpreis-angebot zu machen.

Infrastruktur / Entfernungen

Gesundheit
Arzt <2.500m
Apotheke <2.500m
Klinik <3.500m

Kinder & Schulen
Schule <2.000m
Kindergarten <2.000m

Nahversorgung
Supermarkt <3.500m
Bäckerei <2.000m
Einkaufszentrum <3.500m

Sonstige
Bank <2.000m
Geldautomat <2.000m
Post <3.000m
Polizei <2.000m

Verkehr
Bus <2.000m
Autobahnanschluss <500m
Bahnhof <3.000m

Angaben Entfernung Luftlinie / Quelle: OpenStreetMap

Eckdaten Objektnr. 5576/3481

Art: Haus - Einfamilienhaus
Land: Österreich
Kaufpreis: 139.444,00
Provision: 3% des Kaufpreises zzgl. 20% USt.
Wohnfläche: 122,00 m²
Immobilie merken Exposé

Immobilie anfragen


Ihre persönliche Beratung

Wohntraumreal GmbH

Jakob Hammer

Wohntraumreal GmbH

T +43 660 444 7272