Absolute Ruhelage und Grünblick! Erdwärmeheizung! U1 Nähe!

Wohnung , 1210 Wien


Beschreibung der Immobilie

Absolute Ruhelage und Grünblick! Erdwärmeheizung! U1 Nähe!

Diese High-Level-Wohnung in einem modernen Wohnhaus in der Lammaschgasse 54 – Erstbezug 2019 – ist durch ihre Lage und Ausführung eine ganz besondere Immobilie. Mitten in Floridsdorf, 8 Minuten zu Fuß von der U1 und doch in echter Ruhelage



Drei Zimmer, eine herrliche Terrasse, die südlich ausgerichtet ist, der wunderbare Blick ins Grüne, ein großzügiger Wohnraum, ausgestattet mit einer Einbauküche im Neuwert von ca. € 14.000,-, ein modernes, komplett eingerichtetes Bad, Parkettböden in Landhausdiele Eiche – all das und noch mehr erwartet Sie hier!



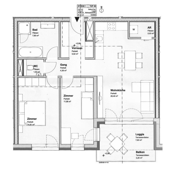
Die knapp 77m² Wohnfläche teilen sich auf in einen geräumigen Vorraum mit Staumöglichkeiten, einen Wohnraum mit 28,46m² mit Ausgang zur ca. 11m² großen Terrasse, ein ca. 12m² großes Schlafzimmer mit seitlichem Zugang zur Terrasse, ein zweites Zimmer mit knapp 15m², das auch ein wunderbares Home-Office oder Kinderzimmer abgeben würde, ein ca. 8m² großes Bad mit Wanne UND Dusche, ein getrenntes WC und einen Abstellraum.



GENIAL: Geheizt und gekühlt wird mit Erdwärme/Geothermie! Unabhängig von jahreszeitlichen, klimatischen Schwankungen oder Tageszeiten liefert die Geothermie ganzjährig Energie. Unabhängig sind Sie damit auch von Gas oder Fernwärme!



Ankommen, wohnen, genießen!





AUF EINEN BLICK:



  • Baujahr ca. 2018 (Erstbezug 2019)
  • Wohnnutzfläche ca. 76,62m²
  • 1. Stock mit Lift
  • Mit dem Lift auch in den Keller
  • Ca. 11m² Südterrasse (teilweise überdacht)
  • 3 Zimmer
  • Badezimmer mit Wanne und Dusche
  • Böden in den Wohnräumen Landhausdiele Eiche
  • Moderne, voll ausgestattete Küche
  • Elektrische Rolläden an allen Fenstern und Terrassentüren
  • Erdwärme (Heizung und Kühlung)
  • Photovoltaik am Dach für WW
  • Kellerabteil 5,91m²
  • 8 Min. Fußweg zur U1
  • Autobahnnähe
  • Ruhelage
  • Grünblick
  • KFZ-Stellplatz um € 15.000,- optional zu erwerben (BK monatl. € 16,80)




DIE LAGE:



Ideal! Sie sind zu Fuß in 8 Min. bei der U1, in 3 Minuten mit dem Auto beim City Gate mit zahlreichen Shoppingmöglichkeiten und nahe an der Autobahn. Ein Spar Supermarkt ist zu Fuß 7 Min. entfernt. Restaurants, Ärzte, Geschäfte, etc. sind in der näheren Umgebung. 





DIE KOSTEN MONATLICH INKL. USt.:



Betriebskosten allgemein € 162,00

Rücklagen € 32,40

= Gesamt € 210,60





DER KAUFPREIS:



€ 435.000,- (zzgl. 3,6% Maklerprovision inkl. 20% USt.)





Kreditrate monatl. laut Willhaben-Kreditrechner bei 20% Eigenmittel / Finanzierung auf 35 Jahre: Ca. € 1.434,-





Unter bestimmten Voraussetzungen (Anmeldung als Hauptwohnsitz, Erstkauf, ...), kommen Sie jetzt in den Genuss der Gebührenbefreiung von der Grundbucheintragungsgebühr (1,1%) und der Eintragungsgebühr des Pfandrechts (1,2%)!





SIE SIND NOCH UNSCHLÜSSIG, OB IHRE FINANZIERUNG GESICHERT IST?



Ihre Hausbank benötigt im Normalfall 4-6 Wochen, um Ihnen mitzuteilen, ob Ihr Kreditantrag bewilligt wird. Unser Finanzierungspartner sagt Ihnen nicht nur anhand Ihrer Unterlagen in kürzester Zeit, ob die Finanzierung klappen wird, er sorgt auch für den besten und günstigsten Wohnkredit, da er Zugang zu den besten Angeboten aller relevanten Banken hat.



Last but not least: Unser Finanzberater kostet Sie nichts, denn er bekommt seine Provision von der finanzierenden Bank!





Ich freue mich auf Ihre Anfrage, bitte ausschließlich über das Inserat unter Angabe Ihrer vollständigen Daten. Für zusätzliche Auskünfte stehe ich Ihnen auch gerne telefonisch zur Verfügung.





Die von uns gemachten Angaben beruhen auf Informationen und Mitteilungen durch Dritte, insbesondere durch die Verkäufer und sind daher ohne Gewähr.


Der Vermittler ist als Doppelmakler tätig.

Infrastruktur / Entfernungen

Gesundheit
Arzt <500m
Apotheke <500m
Klinik <3.000m
Krankenhaus <3.000m

Kinder & Schulen
Schule <500m
Kindergarten <500m
Universität <2.000m
Höhere Schule <2.500m

Nahversorgung
Supermarkt <500m
Bäckerei <500m
Einkaufszentrum <500m

Sonstige
Geldautomat <500m
Bank <500m
Post <1.000m
Polizei <1.000m

Verkehr
Bus <500m
U-Bahn <500m
Straßenbahn <2.000m
Bahnhof <500m
Autobahnanschluss <2.500m

Angaben Entfernung Luftlinie / Quelle: OpenStreetMap

Eckdaten Objektnr. 4832

Art: Wohnung
Land: Österreich
Baujahr: 2018
Alter: Neubau
Kaufpreis: 435.000,00
Betriebskosten: 210,60 €
Wohnfläche: 76,62 m²
Zimmer: 3
Stellplätze: 1
Keller: 5,91 m²
Heizwärmebedarf:  B  29,00 kWh/m²a
fGEE:  A+  0,64
Immobilie merken Exposé

Ausstattung

Erdwärme, Solarenergie, Fußbodenheizung, Einbauküche, Personenaufzug, Südbalkon, Badewanne, Dusche


Immobilie anfragen


Ihre persönliche Beratung

Perfect Deal Immobilien OG

Thomas Kisch

Perfect Deal Immobilien OG

T +43 699 172 00 604