| AB MÄRZ | 3 ZIMMER | MIT BALKON | NEUBAU | NAHE THERESA-TAUSCHER-PARK

Wohnung , 1210 Wien , Leopoldauer Straße


Beschreibung der Immobilie

| AB MÄRZ | 3 ZIMMER | MIT BALKON | NEUBAU | NAHE THERESA-TAUSCHER-PARK

LEO 131 - 1210 Wien - Nähe Theresa-Tauscher-Park und Hans-Hirsch-Park



- PROVISIONSFREI -



Informationen zum Objekt 



Es wurden insgesamt 232 top ausgestattete Wohneinheiten errichtet.



Die Wohnungsgrößen reichen von 1 bis 3 Zimmern mit ca. 33 m² bis 83 m² und werden zwischen € 599,00 - und € 1.249,00 vermietet.



Jede Wohnung verfügt über schöne Freiflächen wie Loggia, Balkon, Terrasse oder Garten.



Im Untergeschoß befindet sich eine Tiefgarage mit 120 PKW-Stellplätzen. Die Kosten dafür betragen € 126,01 Brutto inkl. Ust. pro Monat.



Die Mietverträge werden für die Dauer von 5 Jahren abgeschlossen.



Beheizt werden die Einheiten mittels Fernwärme und Radiatoren.



Die Kosten für Heizung und Warmwasser werden verbrauchsabhängig abgerechnet und sind nicht in der Miete enthalten. 



Das Gebäude wurde in energiesparender Niedrigenergiebauweise errichtet.



Ausstattung



- alle Wohnungen sind mit hochwertigen Tischler-Küchen samt Geräten von Zanussi (Geschirrspüler, Kühlschrank und Herd) ausgestattet

- Eichenparkettboden in sämtlichen Wohn- und Schlafräumen 

- Internetanschluss / Glasfaseranschluss / Magenta / A1

- hauseigene SAT-Anlage für DVB-S-Empfang (der erforderliche SAT-Receiver ist vom    

  Mieter beizustellen).

- Beschattung je nach Wohnungstyp / Außenrollläden bei Gartenwohnungen, Raffstores in allen anderen Wohnungen, mit Kurbel händisch bedienbar

- Video-Gegensprechanlage mit Monitor



- Kellerabteile 

- Fahrrad- und Kinderwagen-Abstellräume

- Tiefgarage mit 120 Stellplätzen I 5 E-Lade-Stellplätzen I € 126,01 Brutto

- Waschküche

- Raum mit Post-Paketboxen

- Aufzug behindertengerecht





Infrastruktur und öffentliche Verkehrsmittel 



Gute Infrastruktur und eine gute Anbindung an den öffentlichen Verkehr –, Straßenbahn und Autobus. Zahlreiche Geschäfte des täglichen Bedarfs finden Sie in unmittelbarer Umgebung.



U-Bahn Linie U1 (Aderklaaer Straße) sowie S-Bahn (Siemensstraße) sind in wenigen Autobusminuten erreicht.





Bei den Fotos handelt es sich um Beispielbilder.

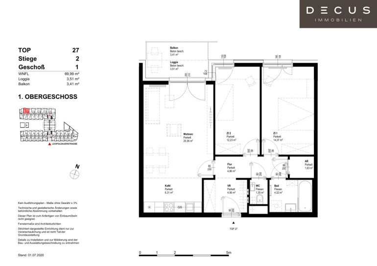
Top 2.28 liegt im 1. Liftstock, ist nord-westseitig ausgerichtet und teilt sich auf wie folgt: 



- Vorzimmer



- Wohnraum mit offenem Küchenbereich und Ausgang auf die Loggia/Balkon  



- 2 Schlafzimmer (12,23 m² und 14,37 m²) 



- Badezimmer (Badewanne, Waschbecken, Waschmaschinenanschluss)



- Toilette mit Handwaschbecken 



- Abstellraum 



- Loggia / Balkon  (gesamt ca. 7 m²)


Der Immobilienmakler erklärt, dass er – entgegen dem in der Immobilienwirtschaft üblichen Geschäftsgebrauch des Doppelmaklers – einseitig nur für den Vermieter tätig ist.

DECUS Immobilien GmbH – Wir beleben Räume

Für weitere Informationen und Besichtigungen steht Ihnen gerne Frau  Laura Kowalczyk unter der Mobilnummer +43 660 157 59 35und per E-Mail unter kowalczyk@decus.at persönlich zur Verfügung.

www.decus.at | office@decus.at 

Wichtige Informationen

Bitte beachten Sie, dass per 13.06.2014 eine neue Richtlinie für Fernabsatz- und Auswärtsgeschäfte in Kraft getreten ist.

Ab 1.4.2024 entfallen die Grundbuchs- und Pfandrechtseintragungsgebühren vorübergehend für Eigenheime bis zu einer Bemessungsgrundlage von EUR 500.000,-. Voraussetzung ist das dringende Wohnbedürfnis, ausgenommen davon sind vererbte oder geschenkte Immobilien. Die Befreiung ist jedoch für den Einzelfall zu prüfen, DECUS Immobilien übernimmt hierzu keine Haftung.

Ab 01.07.2023 gilt das Erstauftraggeber-Prinzip bei Wohnungsmietverträgen, ausgenommen davon sind Dienst-/Natural-/Werkswohnungen. Wir dürfen gem. § 17 Maklergesetz darauf hinweisen, dass wir auf die Doppelmaklertätigkeit gem. § 5 Maklergesetz bei Wohnungsmietverträgen verzichten und nur noch einseitig tätig sind (bei den restlichen Vermittlungsarten nicht) und ein wirtschaftliches Naheverhältnis zu unseren Auftraggebern besteht. 

Im Falle eines Abschlusses mit Ihnen oder einem von Ihnen namhaft gemachten Dritten bzw. bei beidseitiger Willensübereinstimmung beträgt unser Honorar (lt. Honorarverordnung für Immobilienmakler) 2 Bruttomonatsmieten (BMM) bei Dienst-/Natural-/Werkwohnungen sowie Suchaufträgen, 3 BMM bei Gewerbe-, PKW-, Keller- und Lagermietverträgen sowie bei Kaufobjekten 3 % des Kaufpreises, zuzüglich der gesetzlichen Umsatzsteuer.

Dieses Objekt wird Ihnen unverbindlich und freibleibend angeboten. Oben angeführte Angaben basieren auf Informationen und Unterlagen des Eigentümers und sind unsererseits ohne Gewähr.

Nähere Informationen sowie unsere AGBs und die Nebenkostenübersichtsblatt finden Sie auf unserer Homepage www.decus.at unter "Service" - "Rechtliches zum FAGG" sowie im Anhang der zugesendeten Objekt-Exposés!

Infrastruktur / Entfernungen

Gesundheit
Arzt <750m
Apotheke <1.250m
Klinik <1.500m
Krankenhaus <1.500m

Kinder & Schulen
Schule <1.250m
Kindergarten <250m
Universität <1.250m
Höhere Schule <2.000m

Nahversorgung
Supermarkt <500m
Bäckerei <750m
Einkaufszentrum <2.000m

Sonstige
Geldautomat <1.500m
Bank <1.500m
Post <1.250m
Polizei <1.250m

Verkehr
Bus <250m
U-Bahn <1.750m
Straßenbahn <1.250m
Bahnhof <1.000m
Autobahnanschluss <2.250m

Angaben Entfernung Luftlinie / Quelle: OpenStreetMap

Eckdaten Objektnr. 1151482

Art: Wohnung
Land: Österreich
Baujahr: 2020
Zustand: Gepflegt
Alter: Neubau
Gesamtmiete: 1.139,12
Kaltmiete (netto): 885,66 €
Kaltmiete: 1.035,56 €
Provision: Gemäß Erstauftraggeberprinzip bezahlt der Abgeber die Provision.
Betriebskosten: 149,90 €
MwSt Gesamt: 103,56 €
Wohnfläche: 69,99 m²
Nutzfläche: 73,50 m²
Zimmer: 3
Bäder: 1
WC: 1
Balkone: 1
Heizwärmebedarf:  A  21,23 kWh/m²a
fGEE:  A  0,78
Immobilie merken Exposé

Ausstattung

Parkett, Fernwärme, Fußbodenheizung, Wohnküche / offene Küche, Personenaufzug, Kabel/Satelliten-TV, Tiefgarage


Immobilie anfragen


Ihre persönliche Beratung

DECUS Immobilien GmbH

Laura Kowalczyk

DECUS Immobilien GmbH

T +43 660 157 59 35

H +43 660 157 59 35

F +43 1 35 600 10