3,5% Nettorendite! Neuwertige 5-Zimmer-Wohnung in 1100 Wien auf 96m²! Befristet vermietet bis Sommer 2027!

Wohnung , 1100 Wien , Leebgasse


Die Wohnung befindet sich in der Leebgasse im 10. Bezirk von Wien. Sie liegt in der Nähe vieler wichtiger Einrichtungen wie einem Arzt, einer Apotheke, einer Klinik, einer Schule und einem Kindergarten. Auch Supermärkte, eine Bäckerei und ein Einkaufszentrum sind in unmittelbarer Nähe vorhanden. Für Bankgeschäfte gibt es Geldautomaten, Banken und eine Postfiliale in der Nähe. Die Polizei ist ebenfalls gut erreichbar.

Beschreibung der Immobilie

3,5% Nettorendite! Neuwertige 5-Zimmer-Wohnung in 1100 Wien auf 96m²! Befristet vermietet bis Sommer 2027!

https://vires.at/



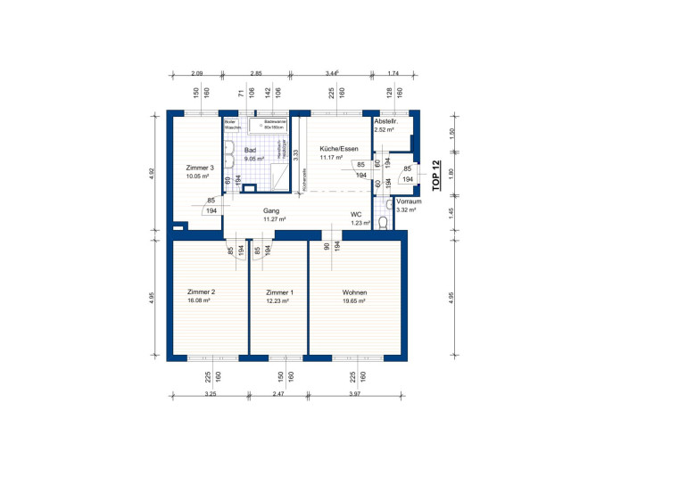
Sie suchen eine geräumige und moderne Wohnung in Wien? Dann haben wir genau das Richtige für Sie! In der beliebten und aufstrebenden Gegend des 10. Bezirks, genauer gesagt in der Nähe des Bahnhofs Wien Hauptbahnhof, befindet sich diese wunderschöne Wohnung. Mit einer Fläche von 96m² und insgesamt 5 Zimmern bietet sie genügend Platz für Sie und Ihre Familie.



Die Wohnung besticht durch ihre moderne und hochwertige Ausstattung. Sie betreten die Wohnung über den Personenaufzug und gelangen direkt in den großzügigen Wohnbereich. Hier erwartet Sie eine offene und voll ausgestattete Wohnküche, die zum gemeinsamen Kochen und gemütlichen Beisammensein einlädt. Der hochwertige Parkettboden verleiht dem Raum eine warme und einladende Atmosphäre.



Auch die restlichen Zimmer der Wohnung sind mit viel Liebe zum Detail gestaltet. Hier finden Sie ebenfalls hochwertiges Parkett vor, das für ein angenehmes Wohngefühl sorgt. Das Badezimmer ist mit einer Badewanne und einem Fenster ausgestattet, was für ausreichend Tageslicht und Frischluft sorgt. Auch die Fliesen im Badezimmer sind modern und zeitlos gehalten.



Besonders hervorzuheben ist die ausgezeichnete Verkehrsanbindung der Wohnung. In unmittelbarer Nähe befinden sich Bus-, Straßenbahn- und U-Bahnstationen, die Ihnen eine schnelle und bequeme Anbindung an das restliche Wien ermöglichen. Auch der Hauptbahnhof ist nur wenige Gehminuten entfernt und bietet Ihnen eine hervorragende Anbindung an den öffentlichen Nah- und Fernverkehr.



Aber nicht nur die Verkehrsanbindung ist optimal, auch die Infrastruktur lässt keine Wünsche offen. In unmittelbarer Nähe finden Sie alles, was Sie für den täglichen Bedarf benötigen. Ob Supermärkte, Bäckereien, Schulen, Kindergärten oder Ärzte - alles befindet sich in fußläufiger Entfernung. Auch für Ihre Freizeitgestaltung ist gesorgt, denn in der Nähe befinden sich ein Kino sowie ein Einkaufszentrum, in dem Sie nach Herzenslust shoppen können.



Überzeugt? Dann zögern Sie nicht lange und vereinbaren Sie noch heute einen Besichtigungstermin für diese neuwertige und moderne Wohnung. Der Kaufpreis von 399.000 € ist für die Größe und die Ausstattung der Wohnung mehr als angemessen. Nutzen Sie die Chance und werden Sie Eigentümer einer Traumimmobilie in Wien! Wir freuen uns auf Ihre Kontaktaufnahme.



Aktuell ist die Wohnung sehr gut mit einem Nettomietzins von 1.150€/Monat vermietet.

Noch nichts gefunden? Wir informieren Sie über geeignete Immobilienangebote noch vor allen anderen.
Legen Sie jetzt Ihren individuellen Suchagenten unter folgendem Link an. Wir schicken Ihnen passende Immobilien exklusiv vorab zu.

Suchagent anlegen - https://vires-immobilien.service.immo/registrieren/de



Sie haben eine Immobilie? Jetzt kostenlos und in 3 Minuten zu einer Immobilienbewertung gelangen


Wir weisen darauf hin, dass zwischen dem Vermittler und dem zu vermittelnden Dritten ein familiäres oder wirtschaftliches Naheverhältnis besteht.


Der Vermittler ist als Doppelmakler tätig.

Sie besitzen selbst eine Immobilie und überlegen diese zu verkaufen? Dann bewerten Sie diese bei uns kostenlos innerhalb von 3 Minuten. Adresse und Eckpunkte eingeben und direkt eine Preisindikation erhalten. Jetzt kostenlos und in 3 Minuten online bewerten!

Infrastruktur / Entfernungen

Gesundheit
Arzt <250m
Apotheke <250m
Klinik <250m
Krankenhaus <1.250m

Kinder & Schulen
Schule <250m
Kindergarten <250m
Universität <1.250m
Höhere Schule <1.750m

Nahversorgung
Supermarkt <250m
Bäckerei <500m
Einkaufszentrum <750m

Sonstige
Geldautomat <250m
Bank <500m
Post <500m
Polizei <250m

Verkehr
Bus <250m
U-Bahn <500m
Straßenbahn <500m
Bahnhof <500m
Autobahnanschluss <2.000m

Angaben Entfernung Luftlinie / Quelle: OpenStreetMap

Eckdaten Objektnr. 7080/136

Art: Wohnung
Land: Österreich
Baujahr: 1968
Zustand: Neuwertig
Möbliert: Voll
Alter: Neubau
Kaufpreis: 399.000,00
Provision: 3% des Kaufpreises zzgl. 20% USt.
Betriebskosten: 207,10 €
Heizkosten: 159,37 €
MwSt Gesamt: 55,89 €
Wohnfläche: 96,00 m²
Nutzfläche: 96,00 m²
Zimmer: 5
Bäder: 1
WC: 1
Keller: 4,00 m²
Heizwärmebedarf:  D  92,80 kWh/m²a
fGEE:  D  2,09
Immobilie merken Exposé

Ausstattung

Fliesen, Parkett, Elektro, Zentralheizung, Wohnküche / offene Küche, Personenaufzug, Bad mit Fenster, Badewanne, Dusche, Wasch/Trockenraum


Immobilie anfragen


Ihre persönliche Beratung

Vires Real Solutions GmbH

Vires Real Solutions

Vires Real Solutions GmbH

T +43 12265533