++MOLLARD 50++ Stylish 2-room garden apartment in the very heart of the city (1/1)

Wohnung , 1060 Wien


Mollardgasse

Beschreibung der Immobilie

++MOLLARD 50++ Stylish 2-room garden apartment in the very heart of the city (1/1)

Welcome to the New Development Project Mollardgasse 50!
Prime location in Vienna’s 6th district, Mariahilf



++ Please note: Kindly do not inquire about this project with another company. You can view all available apartments in this building directly through us. ++



For temporary rental, this bright, well-designed, and high-quality approx. 50 m² 2-room apartment with garden and terrace in a unique new development in an excellent location of Vienna’s 6th district is available!




The Project



MOLLARD 50 presents itself as a modern new construction with three building wings and an underground garage. The architecture impresses with clean lines and thoughtful details, while the floor plans are designed with maximum flexibility and intelligent layouts. Generous balconies, loggias, terraces, and gardens extend the living space outdoors and create a special quality of life.



The location in the heart of the 6th district combines urban infrastructure with high residential quality – numerous shopping facilities, restaurants, and excellent public transport connections are in immediate proximity.




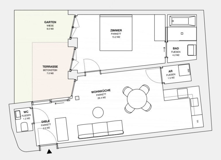
Layout – Stiege 1, Top 1




  • Entrance hall



  • Separate WC



  • Living room with open kitchen



  • Bedroom



  • Bathroom with shower and bathtub



  • Storage room



  • Garden/Terrace

    (see floor plan and photos of a neighboring apartment in the same building)





Features



MOLLARD 50 combines an excellent location with top construction quality.



Almost every apartment not only has an outdoor area but is also equipped with high-quality materials and features, such as:




  • Electric blinds



  • Underfloor heating



  • Modern bathrooms with stylish fixtures



  • Fully equipped kitchen with high-quality branded appliances



  • Basement storage unit



  • And much more




In addition, parking spaces are available in the in-house underground garage (for an extra fee).




Location & Surroundings



Quiet residential area in the 6th district between Gumpendorfer Straße and Linke Wienzeile, with quick access to the city center.

Mariahilfer Straße (approx. 800 m) offers diverse shopping and dining options. Bruno-Kreisky-Park (approx. 230 m) as well as Haus des Meeres/Esterházypark are within walking distance.



Public Transport:




  • U4 (Margaretengürtel, Pilgramgasse)



  • Tram 6 & 18 (e.g., to Westbahnhof, St. Marx)



  • Bus lines 12A, 57A, as well as night lines N6, N8, N60



  • Fast connections to suburban and regional trains via Westbahnhof/Matzleinsdorfer Platz




By Car:
Good accessibility via Wienzeile and Gürtel; quick connection to the southern entrance and A23. Short-term parking applies on weekdays in the area.




Price



The monthly total rent (including VAT) is € 1,275.00.



Note: Monthly costs for electricity, heating, and water are not included and must be paid separately.



The building has a spacious underground garage. Renting a parking space costs € 168 gross per month.




  • Rental period: fixed-term for 5 years



  • Security deposit: 3 gross monthly rents



  • Commission-free



  • Expected move-in date: December 1, 2025





Important Notes



We explicitly point out our economic relationship with the owner.

We act as a dual agent in our role as intermediary.



All information published here is based on the details provided to us by the owner and has not been independently verified.



Our General Terms and Conditions can be viewed in the exposé provided to you as well as on our website. We expressly point out that these GTCs form part of the contract.



The protection of personal data is important to us and legally required. The processing of your personal data is carried out in accordance with data protection regulations. On our website (under “Privacy Policy”), you will find an overview that informs you about the most important aspects of data processing.



Errors and changes excepted.


Wir weisen darauf hin, dass zwischen dem Vermittler und dem zu vermittelnden Dritten ein familiäres oder wirtschaftliches Naheverhältnis besteht.


Der Immobilienmakler erklärt, dass er – entgegen dem in der Immobilienwirtschaft üblichen Geschäftsgebrauch des Doppelmaklers – einseitig nur für den Vermieter tätig ist.

Infrastruktur / Entfernungen

Gesundheit
Arzt <500m
Apotheke <500m
Klinik <500m
Krankenhaus <500m

Kinder & Schulen
Schule <500m
Kindergarten <500m
Universität <1.000m
Höhere Schule <1.000m

Nahversorgung
Supermarkt <500m
Bäckerei <500m
Einkaufszentrum <1.000m

Sonstige
Geldautomat <500m
Bank <500m
Post <500m
Polizei <1.000m

Verkehr
Bus <500m
U-Bahn <500m
Straßenbahn <500m
Bahnhof <500m
Autobahnanschluss <4.000m

Angaben Entfernung Luftlinie / Quelle: OpenStreetMap

Eckdaten Objektnr. 62035

Art: Wohnung
Land: Österreich
Baujahr: 2025
Zustand: Erstbezug
Alter: Neubau
Gesamtmiete: 1.274,98
Kaltmiete (netto): 1.159,07 €
Kaltmiete: 1.159,07 €
Provision: Gemäß Erstauftraggeberprinzip bezahlt der Abgeber die Provision.
MwSt Gesamt: 115,91 €
Wohnfläche: 50,12 m²
Zimmer: 2
Bäder: 1
WC: 1
Terrassen: 1
Garten: 9,00 m²
Heizwärmebedarf: 29,70 kWh/m²a
fGEE: 0,74
Immobilie merken Exposé

Ausstattung

Parkett, Estrichboden, Fliesen, Zentralheizung, Fußbodenheizung, Einbauküche, Personenaufzug, Nordbalkon, Badewanne


Immobilie anfragen


Ihre persönliche Beratung

Adonia Realitätenvermittlung GmbH

Adonia Immobilien

Adonia Immobilien GmbH

T +43 676 637 24 96