EXCLUSIVER ERSTBEZUG

Wohnung , 1010 Wien,Innere Stadt


Beschreibung der Immobilie

EXCLUSIVER ERSTBEZUG

INNENSTADT / RATHAUSVIERTEL: EIN PRACHTVOLLES GRÜNDERZEITPALAIS WURDE KOMPLETT SANIERT UND AUFGESTOCKT 



ZUR VERMIETUNG GELANGEN ERSTKLASSIGE ALTBAUWOHNUNGEN UND NEU ERRICHTETE DACHWOHNUNGEN - ALLE HOCHWERTIGST MODERN AUSGESTATTET



LAGE:



Dieses ursprünglich 1885 errichtete Gebäude liegt in der eleganten Rathausstraße. In wenigen Minuten ist man zu Fuß z.B. im Burgtheater, beim Schottentor, im Rathauspark, im Volksgarten und in den gemütlichen Lokalen der Josefstadt.



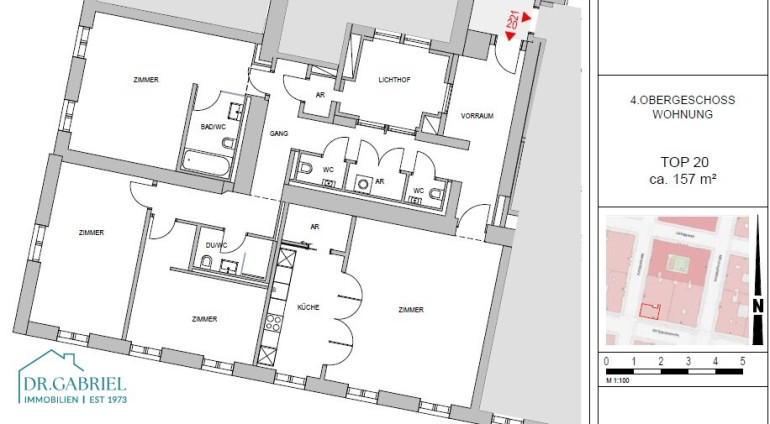
SCHÖNE WOHNUNG MIT DREI SCHLAFZIMMERN - befristete Vermietung (5Jahre)





RAUMAUFTEILUNG:



- Vorraum, - Wohnraum, - Küche optisch abgetrennt, - drei Schlafzimmer, - ein Wannenbad, - ein Duschbad, - vier WC



AUSSTATTUNG:



- Eichenparkett, - Fußbodenheizung, - Tischlerküche mit MIELE Geräten, - Kühlung: Fan Coils, - Kellerabteil





Das Akonto für WW/ Heizung/ Kühlung beträgt 76,89 EUR/Monat (inkl. UST).



Für die Erstellung des Mietvertrages ist ein einmaliger Betrag von Euro 249,00 brutto an die Hausverwaltung zu bezahlen.





Hinweis/ Disclaimer: Die Möbel sind digital und mit KI erstellt worden.





BITTE ZU BEACHTEN:



FÜR DIE ANMIETUNG DIESER WOHNUNG IST DIE VORLAGE EINES MONATLICHEN NETTOHAUSHALTSEINKOMMEN IN HÖHE VON MINDESTENS DER DREIFACHEN GESAMTMIETE ERFORDERLICH!




Wir weisen darauf hin, dass zwischen dem Vermittler und dem zu vermittelnden Dritten ein familiäres oder wirtschaftliches Naheverhältnis besteht.


Der Immobilienmakler erklärt, dass er – entgegen dem in der Immobilienwirtschaft üblichen Geschäftsgebrauch des Doppelmaklers – einseitig nur für den Vermieter tätig ist.

Infrastruktur / Entfernungen

Gesundheit
Arzt <500m
Apotheke <500m
Klinik <500m
Krankenhaus <1.000m

Kinder & Schulen
Schule <500m
Kindergarten <1.000m
Universität <500m
Höhere Schule <500m

Nahversorgung
Supermarkt <500m
Bäckerei <500m
Einkaufszentrum <1.500m

Sonstige
Geldautomat <500m
Bank <500m
Post <1.000m
Polizei <500m

Verkehr
Bus <500m
U-Bahn <500m
Straßenbahn <500m
Bahnhof <500m
Autobahnanschluss <3.000m

Angaben Entfernung Luftlinie / Quelle: OpenStreetMap

Eckdaten Objektnr. 29528

Art: Wohnung
Land: Österreich
Zustand: Erstbezug
Alter: Altbau
Gesamtmiete: 4.195,01
Kaltmiete (netto): 3.372,66 €
Kaltmiete: 3.813,64 €
Provision: Gemäß Erstauftraggeberprinzip bezahlt der Abgeber die Provision.
Betriebskosten: 440,98 €
MwSt Gesamt: 381,37 €
Wohnfläche: 157,00 m²
Zimmer: 4
Bäder: 2
WC: 4
Immobilie merken Exposé

Ausstattung

Fußbodenheizung, Personenaufzug


Immobilie anfragen


Ihre persönliche Beratung

Dr. Alexandra Gabriel Realitätenvermittlungsgesellschaft m.b.H.

Office Team

Dr. Alexandra Gabriel Realitätenvermittlungsgesellschaft m.b.H.

T +43 1 533 10 96