GEMÜTLICH, MODERN, ENERGIEEFFIZIENT: Fünf 2 Zimmer- Mietwohnungen mit Außenflächen warten auf Sie!

Wohnung - Dachgeschoß, 2013 Göllersdorf


Diese hochwertige Immobilie liegt in Viendorf, in der Marktgemeinde Göllersdorf, nur 25 Minuten von Wien entfernt,. Der renommierte Golfclub Schloss Schönborn befindet sich in unmittelbarer Nähe.

Beschreibung der Immobilie

GEMÜTLICH, MODERN, ENERGIEEFFIZIENT: Fünf 2 Zimmer- Mietwohnungen mit Außenflächen warten auf Sie!

Willkommen in Ihrem neuen Zuhause in Viendorf!



Schön und zeitgemäß Wohnen- dies können Sie, als Single oder Paar, in diesen gerade in Fertigstellung befindlichen modernen Mietwohnungen im Erstbezug im schönen Viendorf in einer ruhigen Wohnsiedlung.



Insgesamt werden 5 Wohnungen angeboten, die höchsten Ansprüchen gerecht wird.



-  Balkone bzw. Terrassen in jeder Wohnung.



-  Photovoltaikanlage am Dach



-  Luftwärmepumpe



- Fußbodenheizung,



- 2 Gartenwohnungen



- je ein Stellplatz pro Wohnung





Die Wohnungen wurden soebeen fertigestellt und bieten Ihnen die besondere Gelegenheit in diesm Neubau Ihre Wohnung



VERKEHRSANBINDUNG:



Schnellbahn von Göllersdorf ca.. 1 km, bzw Schönborn Mallebern ca.2 km



Bus: ca. 400m



INFRASTRUKTUR



Spar, Billa in Göllersorf,



Kaffehaus, Fleischhauer in Göllerdorf

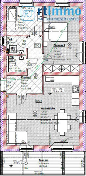
Wohnfläche & Raumaufteilung



Die Wohnung befindet sich im Dachgeschoss und bietet 67,21 qm Wohnfläche und eine Terasse.




Raumaufteilung:




  • Vorraum



  • Wohnküche



  • Schlafzimmer



  • WC



  • Bad



  • Abstellraum



  • Terrasse






Alle Wohnungen verfügen über einen separaten Eingang und Parkplätze.



Bezugsfertigkeit



Erstbezug ab 15. Oktober 2025



Kostenübersicht



Gesamtmiete (inkl. USt & BK):€ 871,74



Kaution: € 2.700,00



Energie- und Heizkosten nach Bedarf


Wir weisen darauf hin, dass zwischen dem Vermittler und dem zu vermittelnden Dritten ein familiäres oder wirtschaftliches Naheverhältnis besteht.


Der Immobilienmakler erklärt, dass er – entgegen dem in der Immobilienwirtschaft üblichen Geschäftsgebrauch des Doppelmaklers – einseitig nur für den Vermieter tätig ist.

BITTE HABEN SIE DAFÜR VERSTÄNDNIS, DASS WIR NUR VOLLSTÄNDIG AUSGEFÜLLTE ANFRAGEN (NAME, PLZ, ANSCHRIFT, TEL.NR.) BEARBEITEN KÖNNEN!

Infrastruktur / Entfernungen

Gesundheit
Arzt <7.000m
Krankenhaus <9.500m
Apotheke <10.000m

Kinder & Schulen
Schule <6.500m
Kindergarten <6.500m

Nahversorgung
Supermarkt <2.000m
Bäckerei <2.000m

Sonstige
Bank <2.000m
Geldautomat <2.000m
Post <1.000m
Polizei <2.000m

Verkehr
Bus <500m
Autobahnanschluss <2.500m
Bahnhof <1.500m
Flughafen <9.500m

Angaben Entfernung Luftlinie / Quelle: OpenStreetMap

Eckdaten Objektnr. 4575

Art: Wohnung - Dachgeschoß
Land: Österreich
Baujahr: 2025
Zustand: Erstbezug
Alter: Neubau
Gesamtmiete: 871,74
Kaltmiete (netto): 658,07 €
Kaltmiete: 792,49 €
Provision: Gemäß Erstauftraggeberprinzip bezahlt der Abgeber die Provision.
Betriebskosten: 134,42 €
MwSt Gesamt: 79,25 €
Wohnfläche: 67,21 m²
Zimmer: 2
Bäder: 1
WC: 1
Terrassen: 1
Heizwärmebedarf:  B  34,00 kWh/m²a
fGEE:  A++  0,75
Immobilie merken Exposé

Immobilie anfragen


Ihre persönliche Beratung

RT Immobilien Mag. Buchwieser & Kofler GmbH

Mag. Wolfgang Buchwieser

RT Immobilien Mag.Buchwieser & Toth GmbH

T +43 1 470 39 55

H +43 660 651 38 29

F +43 1 470 39 55 89