Ihr Traum vom Wohnen wird wahr: Moderne Mietwohnungen im Tullnerfeld
Wohnung
,
3451
Pixendorf
,
Rebhuhnstraße
Beschreibung der Immobilie
Ihr Traum vom Wohnen wird wahr: Moderne Mietwohnungen im Tullnerfeld
Moderne Mietwohnungen! "Lebensraum Tullnerfeld" - Entdecken Sie Ihre neue Wohnoase!
In grüner Lage wurde vor kurzem das beeindruckende Wohnbauprojekt "Lebensraum Tullnerfeld" fertig gestellt, mit gesamt 308 Mietwohnungen sowie 7 Gewerbeflächen! Die 2-5 Zimmerwohnungen bieten Wohnflächen zwischen ca. 38m² und 115 m², somit finden hier sowohl Singles, Pärchen als auch Familien ihr künftiges Zuhause!
Ein Kindergarten und eine Tagesbetreuungsstätte für Kleinkinder direkt vor Ort machen das Leben besonders für Familien angenehm. Als besonderes Highlight ist ein gemütlicher Café/Hofladen geplant, der als Treffpunkt für Bewohner und Nachbarn dient. Zusätzlich stehen den Bewohnern Aufenthaltsmöglichkeiten auf den Dachflächen zur Verfügung, inklusive beschatteter Sitzmöglichkeiten und hauseigener Hochbeete für den Anbau von Gemüse und Kräutern.
Die ausgezeichnete Lage des "Lebensraum Tullnerfeld" mitten im Grünen, nur 10km von der Bezirkshauptstadt Tulln entfernt, verspricht Urbanes Wohnen mit bester Infrastruktur! Geschäfte des täglichen Bedarfs in Michelhausen und Langenrohr sind nur 5 Autominuten entfernt. Genießen Sie Einkaufsmöglichkeiten, gastronomische Angebote sowie Grünflächen, die Raum für Erholung und Entspannung bieten. Die ausgezeichnete Lage ist auch für Pendler nach Wien oder St. Pölten geeignet. Beide Städte sind über den Bahnhof Tullnerfeld innerhalb von 20 Minuten mit dem Zug erreichbar.
Allgemeines zum Wohnbauprojekt:
- 308 Wohnungen & 7 Gewerbeeinheiten verteilt auf mehrere Bauteile
- 2-5 Zimmerwohnungen mit Wohnflächen zwischen 38,² und 115m²
- Jede Wohnung mit privater Freifläche in Form von Balkon, Loggia, Terrasse oder Garten
- Einlagerungsraum für jede Wohnung
- Kindergarten & Tagesbetreuungsstätte für Kleinkinder
- Aufwendig gestaltete Außenanlagen und Gemeinschaftsterrassen mit Pergola
- Café/Hofladen im Projekt geplant
- Tiefgarage
Ausstattungsdetails:
- Vollständig ausgestattete Küchen
- Feinsteinzeug in den Badezimmern
- Hochwertiger Design-Vinylboden in den Wohnräumen
- 3 Scheiben Isolierverglasung mit außenliegendem Sonnenschutz
- Betonkernaktivierung
- im Dachgeschoß: Deckenkühlung
Bezugsfertig: ab sofort!
Befristung: 5 Jahre, 1 Jahr Kündigungsverzicht, 3 Monate Kündigungsfrist
Strom, Heizung und Warm-/Wasser werden nach Verbrauch abgerechnet.
Nebenkosten
3 BMM Kaution, Vertragserrichtungsgebühr
Wir weisen darauf hin, dass zwischen dem Vermittler und dem zu vermittelnden Dritten ein familiäres oder wirtschaftliches Naheverhältnis besteht.
Der Immobilienmakler erklärt, dass er – entgegen dem in der Immobilienwirtschaft üblichen Geschäftsgebrauch des Doppelmaklers – einseitig nur für den Vermieter tätig ist.
Infrastruktur / Entfernungen
Gesundheit
Arzt <1.250m
Apotheke <1.250m
Klinik <1.250m
Krankenhaus <7.250m
Kinder & Schulen
Schule <3.000m
Kindergarten <1.250m
Universität <7.000m
Höhere Schule <6.500m
Nahversorgung
Supermarkt <3.250m
Bäckerei <1.250m
Einkaufszentrum <7.000m
Sonstige
Bank <3.250m
Geldautomat <3.250m
Post <2.000m
Polizei <4.750m
Verkehr
Bus <750m
Bahnhof <1.250m
Angaben Entfernung Luftlinie / Quelle: OpenStreetMap
Eckdaten Objektnr. 77882
| Art: | Wohnung |
| Land: | Österreich |
| Baujahr: | 2024 |
| Zustand: | Erstbezug |
| Alter: | Neubau |
| Gesamtmiete: | 1.095,00 € |
| Kaltmiete (netto): | 782,53 € |
| Kaltmiete: | 995,46 € |
| Provision: | Gemäß Erstauftraggeberprinzip bezahlt der Abgeber die Provision. |
| Betriebskosten: | 212,93 € |
| MwSt Gesamt: | 99,54 € |
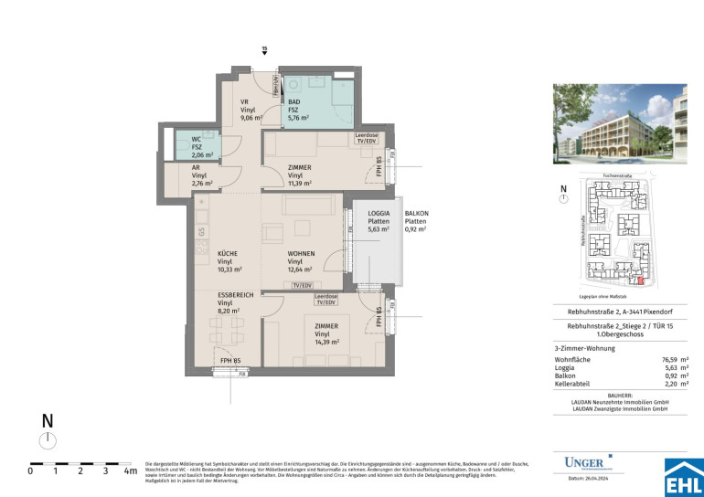
| Wohnfläche: | 76,59 m² |
| Zimmer: | 3 |
| Bäder: | 1 |
| WC: | 1 |
| Balkone: | 1 |
| Heizwärmebedarf: | B 20,92 kWh/m²a |
| fGEE: | A 0,80 |
Ausstattung
Fliesen, Wohnküche / offene Küche, Personenaufzug, Ostbalkon, Dusche
Ihre persönliche Beratung
Dieser Makler ist ein offizielles Mitglied des IR – ir.at Mehr Erfahren
